Semi-detached house Borgata S. Giuseppe, Favria
€ 140.000Casa semindipendente in vendita
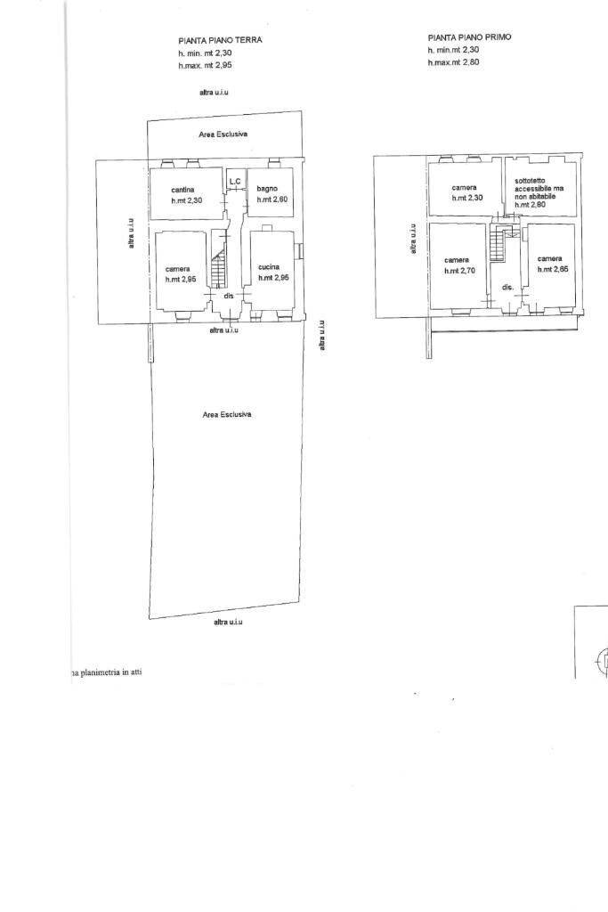
Nella campagna favriese, libera su tre lati, offre spazi ben distribuiti, ideali per chi cerca una soluzione abitativa funzionale. La proprietà si sviluppa su più livelli, garantendo una buona separazione tra le aree giorno e notte. Al piano terra un ampio soggiorno con camino, la cucina, il bagno con vasca e doccia e una comoda cantina. Le camere da letto, situate al piano superiore, offrono tranquillità e privacy. La casa dispone di un bagno ben dimensionato e di un ulteriore spazio che può essere utilizzato come studio o area hobby. All'esterno, un giardino e un cortile privato permettono di godere di momenti all'aria aperta.
Main data
| Reference | 61134672 |
| Ad date | 06/11/2025 |
| Contract | Sale |
| Typology | Semi-detached house |
| Surface | 140 m2 |
| Locals | 5 (5 other), 1 bathroom |
| Plan | 2 totals |
Costs
| Price | 140.000 € |
| Price per m2 | 1.000 €/m2 |
Energy efficiency
| Year built | 1967 |
| Heating | Autonomous |
| Heating Power Type | Gpl |
| Energy rating | G |
| Energy performance index (EP GL, REN ) | 3.95 kWh/m3 year |
| Energy performance index (EP GL, NREN ) | 419.94 kWh/m3 year |
Floor plans
Address and map
Borgata S. Giuseppe, Favria
Mortgage calculation
Selling price:
Advance
20,00
Mortgage
80,00
Rate: -+
Payment: 400 per month
The results are an indicative estimate based on the data entered and do not constitute a financial offer.
Advertiser
Call
CONTACT

