Shed Via Mischio 9, Dueville
€ 800.000
Capannone commerciale/produttivo
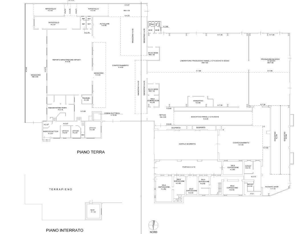
L'opificio in vendita a Dueville, situato nella zona di Passo di Riva, si estende su una superficie totale di 4.110 metri quadrati (area esterna di pertinenza esclusiva 1.450 m²) - superficie calpestabile di 3.833 metri quadrati garantisce ampi spazi per la produzione, lo stoccaggio e la logistica.
L'altezza dei locali è é variabile da 5 ml a di 7,60 metri, perfetta per ospitare macchinari e attrezzature industriali di medie dimensioni, con un'ampia libertà di movimento e facilità di manovra.Il capannone si sviluppa su un unico piano ed è dotato di 12 ingressi, garantendo una scorrevolezza nel flusso di persone e mezzi.
Questa caratteristica lo rende ideale per attività che richiedono un elevato numero di operai o per situazioni in cui è necessario dividere lo spazio in più aree di lavoro.Inoltre, la posizione strategica dell'opificio in zona Passo di Riva, a pochi passi dai principali snodi stradali e autostradali, lo rende facilmente raggiungibile e ben collegato con le principali città e zone industriali.
Lasset si compone di un capannone con zona produzione oggetto di tre ampliamenti dal 1966 al 1993, uffici, servizi, portici e tettoie, alloggio del custode, e porzione storica un tempo adibita a zona esposizione e uffici oltre ad un terreno agricolo di circa 5.630 m² da adibire potenzialmente a parcheggi.
Il compendio insiste su di un lotto di circa 5.630 m² e sviluppa in pianta una superficie coperta di 4.100 m²; risulta visibile dalla strada provinciale Schiavonesca/Marosticana.
La porzione produttiva, consente destinazioni duso produttiva, commerciale e di deposito.
Lo stato di conservazione è discreto, con la possibilità di apportare eventuali miglioramenti e personalizzazioni in base alle esigenze del futuro acquirente. E' stata inoltre ipotizzato un intervento di trasformazione che prevede la suddivisione in più unità artigianali.
L'opificio in vendita a Dueville, situato nella zona di Passo di Riva, si estende su una superficie totale di 4.110 metri quadrati (area esterna di pertinenza esclusiva 1.450 m²) - superficie calpestabile di 3.833 metri quadrati garantisce ampi spazi per la produzione, lo stoccaggio e la logistica.
L'altezza dei locali è é variabile da 5 ml a di 7,60 metri, perfetta per ospitare macchinari e attrezzature industriali di medie dimensioni, con un'ampia libertà di movimento e facilità di manovra.Il capannone si sviluppa su un unico piano ed è dotato di 12 ingressi, garantendo una scorrevolezza nel flusso di persone e mezzi.
Questa caratteristica lo rende ideale per attività che richiedono un elevato numero di operai o per situazioni in cui è necessario dividere lo spazio in più aree di lavoro.Inoltre, la posizione strategica dell'opificio in zona Passo di Riva, a pochi passi dai principali snodi stradali e autostradali, lo rende facilmente raggiungibile e ben collegato con le principali città e zone industriali.
Lasset si compone di un capannone con zona produzione oggetto di tre ampliamenti dal 1966 al 1993, uffici, servizi, portici e tettoie, alloggio del custode, e porzione storica un tempo adibita a zona esposizione e uffici oltre ad un terreno agricolo di circa 5.630 m² da adibire potenzialmente a parcheggi.
Il compendio insiste su di un lotto di circa 5.630 m² e sviluppa in pianta una superficie coperta di 4.100 m²; risulta visibile dalla strada provinciale Schiavonesca/Marosticana.
La porzione produttiva, consente destinazioni duso produttiva, commerciale e di deposito.
Lo stato di conservazione è discreto, con la possibilità di apportare eventuali miglioramenti e personalizzazioni in base alle esigenze del futuro acquirente. E' stata inoltre ipotizzato un intervento di trasformazione che prevede la suddivisione in più unità artigianali.
Main data
| Reference | MI3 |
| Ad date | 05/11/2025 |
| Contract | Sale |
| Typology | Shed |
| Surface | 4110 m2 |
| Occupied | Free |
Costs
| Price | 800.000 € |
| Price per m2 | 195 €/m2 |
Energy efficiency
| Heating Power Type | Other |
| Energy rating | E |
| Energy Performance Index (IPE) | 213 kWh/m2 year |
Floor plans
Address and map
Via Mischio
9, Dueville
Ad without map,
try asking the advertiser for the position
try asking the advertiser for the position
Mortgage calculation
Selling price:
Advance
20,00
Mortgage
80,00
Rate: -+
Payment: 2.288 per month
The results are an indicative estimate based on the data entered and do not constitute a financial offer.
Advertiser

Modus Real Estate Srl
Via Fabio Filzi 16, Pisa
Show Phone
Show Mobile
Call
CONTACT

