Shop via Andrea Moretti, Bergamo
Private negotiationelegante negozio uso promiscuo
Bergamo centrale laterale via A Maj ,splendida opportunità di negozio in pronta consegna subito per traslocare nuovo ristrutturato completamente , posto al piano terra con 3 vetrine fronte strada due ingressi ,indipendente composto da 3 locali piu doppi servizi , con predisposizione ad uso promiscuo, abitazione e attività . impianto autonomo con riscaldamento e raffrescamento autonomo -e con arredi ad incasso (parzialmente ) il tutto Inserito in contesto d'epoca con progetto per il rifacimento delle facciate . finiture di ottimo livello qualitativo , zona strategica e molto servita da supermercati, palestra , scuole , negozi, ACI di via angelo Maj uffici pubblica amministrazione , ecc. Possibilità di posto auto di proprietà esclusiva in vendita a 17000 euro e di un solaio agibile restaurato con piccole finestre a 25.000 euro . A richiesta possibilità di accorpamento per aumentare la metratura . APPROFONDIMENTI PER LA POSSIBILITA DI ACCOLLO MUTUO CON RISPARMIO SULLE SPESE ACCESSORIE approfondimenti e visite tel 3342132338
Main data
| Reference | ID2895876 |
| Ad date | 23/10/2025 |
| Contract | Sale |
| Typology | Shop |
| Surface | 130 m2 |
| Plan | 1 totals |
| Real estate use | Commercial |
Costs
| Price | Private negotiation |
Energy efficiency
| Heating | Autonomous |
| Energy rating | C |
| Energy Performance Index (IPE) | 65 kWh/m2 year |
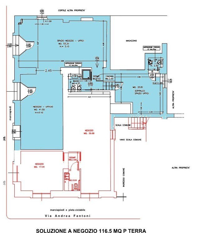
Floor plans
Address and map
via Andrea Moretti, Bergamo
Advertiser

Grandimora
Via Masone 19, Bergamo
Show Phone
Show Mobile
Call
CONTACT

