Terraced Villa strada Cantone Bonino, 15e, hamlet Vandorno, Biella
€ 370.000BIELLLA/VANDORNO STRADA CANTONE BONINO
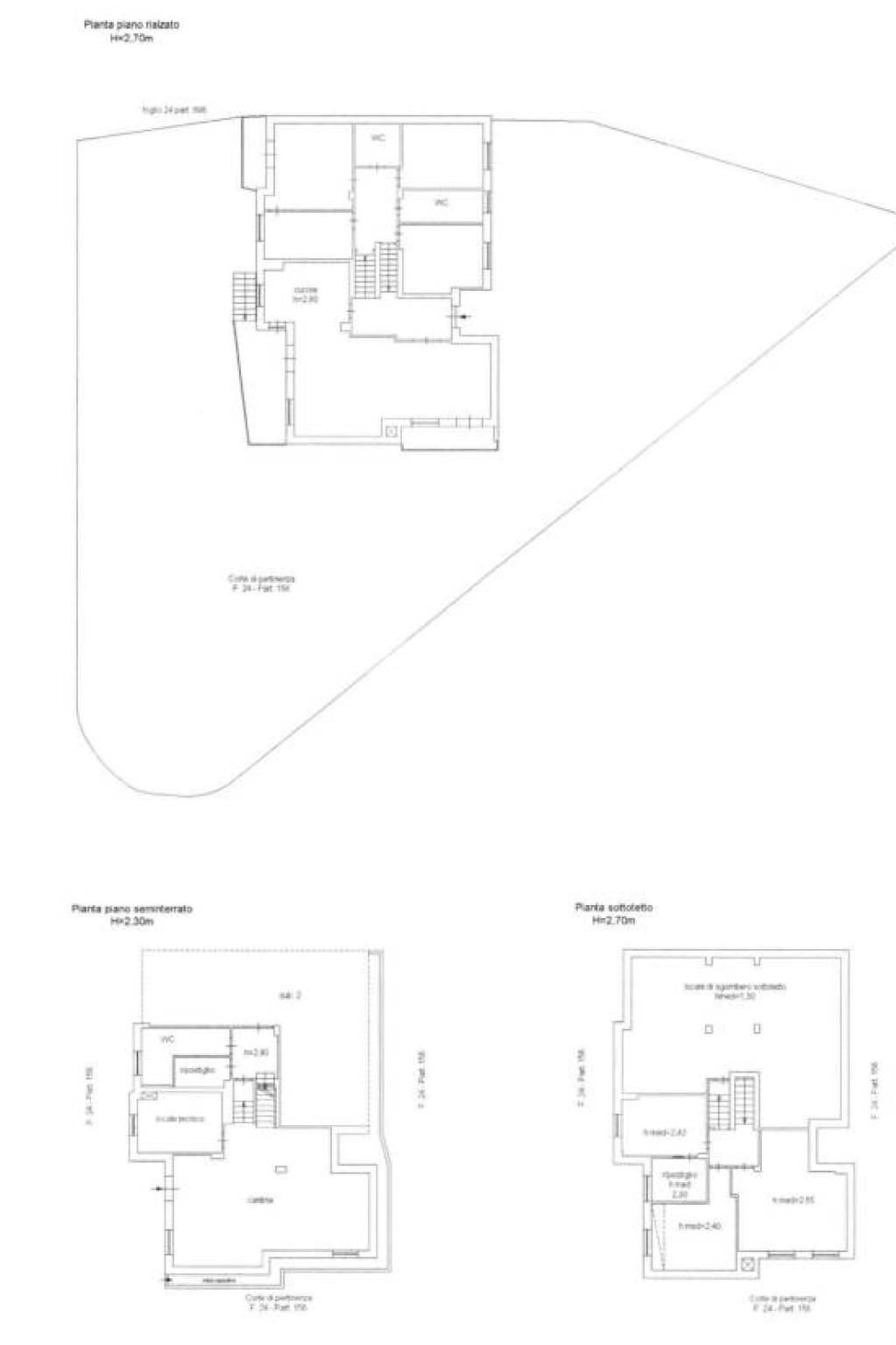
BIELLA/VANDORNO STRADA CANTONE BONINO In zona residenziale circondata da verde in posizione tranquilla, proponiamo in vendita villa fine schiera di ampia metratura e di recente ristrutturazione, così composta: al Piano Terreno: doppio ingresso, ampio salone con cucina a vista, disimpegno, tre camere da letto, uno studio, due bagni, tre balconi e vano scala per accedere al Piano 1° dove troviamo: Piano 1°: quattro vani, disimpegno ed ampio locale di sgombero al rustico. Al Piano seminterrato: ampia tavernetta, un locale tecnico, un wc, un ripostiglio, disimpegno ed ampia' autorimessa di mq. 67 ca. Rifinisce la proprietà ampio cortile pavimentato e giardino. Serramenti in legno con doppio vetro. Riscaldamento autonomo a gas metano, camino a legna e depuratore dell'acqua sanitaria. Prezzo Euro 370.000, 00. PRESTAZIONE ENERGETICA IN CORSO.
Main data
| Reference | ID2895833 |
| Ad date | 30/10/2025 |
| Contract | Sale |
| Typology | Terraced Villa |
| Surface | 390 m2 |
| Locals | more than 5 (3 bedrooms, 11 other), 4 bathrooms, kitchen on sight |
| Plan | 3 totals |
| Construction type | Average |
| Number of balconies | 1 |
| Garage | Double |
| Number of parking spaces | 3 |
| Furniture | Partial |
Costs
| Price | 370.000 € |
| Price per m2 | 949 €/m2 |
Energy efficiency
| Status | Excellent |
| Heating | Autonomous |
| Energy rating | Property exempt from energy certification |
Floor plans
Address and map
strada Cantone Bonino, 15e, Biella - hamlets Vandorno
Mortgage calculation
Selling price:
Advance
20,00
Mortgage
80,00
Rate: -+
Payment: 1.058 per month
The results are an indicative estimate based on the data entered and do not constitute a financial offer.
Advertiser
Call
CONTACT


