Four-room apartment Via Guglielmo Oberdan, Fonte Nuova
€ 290.000Appartamento - Quadrilocale a Fonte Nuova
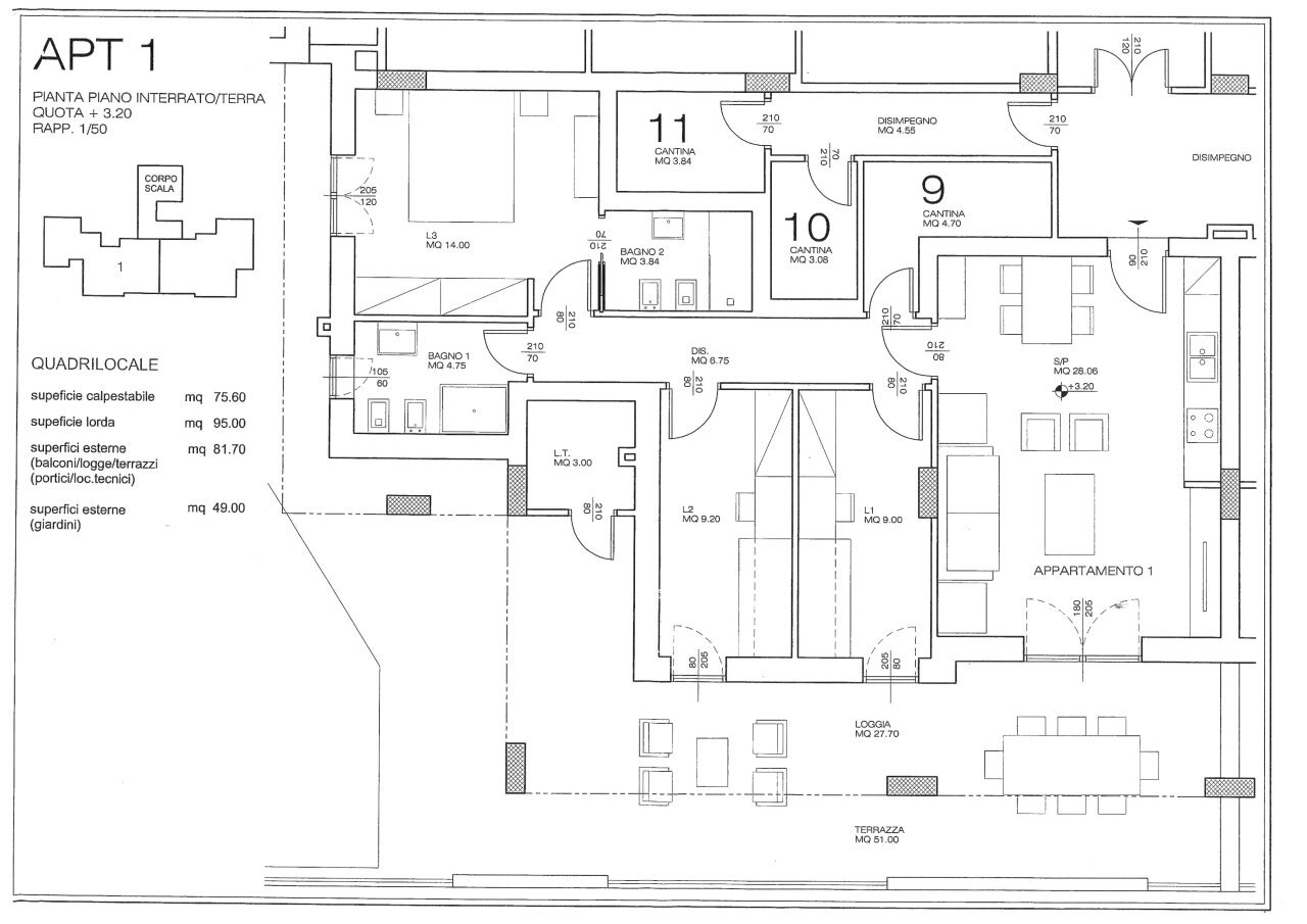
In elegante palazzina di lusso di prossima realizzazione, proponiamo in vendita appartamento al piano terra con spazio esterno privato, ideale per chi desidera comfort e qualità in un contesto tranquillo ma a due passi dal centro. L’immobile è composto da ampia zona giorno con angolo cottura, tre camere da letto e due bagni, esterno 81mq di terrazzo e 50 mq di verde, il tutto studiato per garantire massima efficienza energetica e finiture di pregio. Caratteristiche principali: • Classe energetica A4 • Pompa di calore e riscaldamento a pavimento • Pannelli fotovoltaici per il risparmio energetico • Possibilità di box auto e cantina La consegna è prevista per luglio 2026. Soluzioni abitative moderne, funzionali e con bassissimi consumi, perfette per chi sogna una casa nuova, sostenibile e costruita secondo i più alti standard di comfort. ALTRI PIANI E TAGLI DISPONIBILI!
Main data
| Reference | vs-1 |
| Ad date | 29/10/2025 |
| Contract | Sale |
| Typology | Apartment |
| Surface | 95 m2 |
| Locals | 4 (3 bedrooms, 1 other), 2 bathrooms |
| Plan | 1 totals |
Costs
| Price | 290.000 € |
| Price per m2 | 3.053 €/m2 |
Energy efficiency
| Year built | 2026 |
| Energy rating | A+ |
| Energy Performance Index (IPE) | - |
Address and map
Via Guglielmo Oberdan, Fonte Nuova
Mortgage calculation
Selling price:
Advance
20,00
Mortgage
80,00
Rate: -+
Payment: 829 per month
The results are an indicative estimate based on the data entered and do not constitute a financial offer.
Advertiser
Call
CONTACT


