Commercial Premises via vittorio emanuele 310, Biancavilla
€ 28.000
Stabile indipendente con locale commerciale nel cuore storico di Biancavilla (CT)
Nel pieno centro di Biancavilla, in Via Vittorio Emanuele 310, presentiamo in vendita un intero stabile indipendente con locale commerciale al Piano Terra (C/1) e unità residenziale (A/4) ai piani superiori.
Situata in una delle vie più antiche, vive e strategiche del paese.
Composizione immobile:
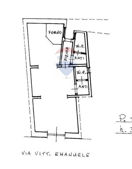
Piano terra (39 mq): locale commerciale con abitabilità e doppio servizio, pronto per essere utilizzato sin da subito.
La posizione su Via Vittorio Emanuele garantisce massima visibilità e passaggio pedonale, ideale per attività professionali, negozi o piccoli locali di somministrazione.
Questa posizione garantisce massima visibilità commerciale e alto passaggio pedonale, rendendolo ideale per negozi, studi professionali o attività di servizi.
Primo piano (circa 30 mq): due vani e servizio con affaccio diretto sulla via principale, secondo piano (circa 27 mq): ambiente da rifinire
Ideali per uso ufficio privato o professionale, B&B o anche abitazione
Posizione strategica:
Ci troviamo nel cuore storico di Biancavilla, a pochi passi dalla Chiesa Madre, da Piazza Roma e dalla suggestiva zona Itria, luoghi simbolo della città e fulcro di tradizioni, cultura e commercio.
Questo stabile una scelta perfetta per chi vuole avviare unattività in una posizione di grande passaggio o investire in un immobile ad alto rendimento.
Grazie alla combinazione di locale commerciale abitabile e unità residenziale, limmobile rappresenta una soluzione versatile Ideale per:
Per chi vuole avviare la propria attività e abitare sopra il locale,
oppure per chi cerca un investimento a reddito, affittando le unità separatamente e ottenendo due fonti di guadagno.
Investitori che desiderano ottenere reddito locativo da più unità;
Imprenditori e professionisti che vogliono unire lavoro e abitazione nello stesso stabile;
Chi cerca una soluzione indipendente nel centro cittadino, con grande potenziale di valorizzazione.
Prezzo richiesto: 28.000
Opportunità unica per chi riconosce il valore della posizione, della visibilità e della versatilità.
Un immobile che racchiude storia e potenziale, nel cuore autentico di Biancavilla.
PRENOTA ADESSO LA TUA VISITA.
Nel pieno centro di Biancavilla, in Via Vittorio Emanuele 310, presentiamo in vendita un intero stabile indipendente con locale commerciale al Piano Terra (C/1) e unità residenziale (A/4) ai piani superiori.
Situata in una delle vie più antiche, vive e strategiche del paese.
Composizione immobile:
Piano terra (39 mq): locale commerciale con abitabilità e doppio servizio, pronto per essere utilizzato sin da subito.
La posizione su Via Vittorio Emanuele garantisce massima visibilità e passaggio pedonale, ideale per attività professionali, negozi o piccoli locali di somministrazione.
Questa posizione garantisce massima visibilità commerciale e alto passaggio pedonale, rendendolo ideale per negozi, studi professionali o attività di servizi.
Primo piano (circa 30 mq): due vani e servizio con affaccio diretto sulla via principale, secondo piano (circa 27 mq): ambiente da rifinire
Ideali per uso ufficio privato o professionale, B&B o anche abitazione
Posizione strategica:
Ci troviamo nel cuore storico di Biancavilla, a pochi passi dalla Chiesa Madre, da Piazza Roma e dalla suggestiva zona Itria, luoghi simbolo della città e fulcro di tradizioni, cultura e commercio.
Questo stabile una scelta perfetta per chi vuole avviare unattività in una posizione di grande passaggio o investire in un immobile ad alto rendimento.
Grazie alla combinazione di locale commerciale abitabile e unità residenziale, limmobile rappresenta una soluzione versatile Ideale per:
Per chi vuole avviare la propria attività e abitare sopra il locale,
oppure per chi cerca un investimento a reddito, affittando le unità separatamente e ottenendo due fonti di guadagno.
Investitori che desiderano ottenere reddito locativo da più unità;
Imprenditori e professionisti che vogliono unire lavoro e abitazione nello stesso stabile;
Chi cerca una soluzione indipendente nel centro cittadino, con grande potenziale di valorizzazione.
Prezzo richiesto: 28.000
Opportunità unica per chi riconosce il valore della posizione, della visibilità e della versatilità.
Un immobile che racchiude storia e potenziale, nel cuore autentico di Biancavilla.
PRENOTA ADESSO LA TUA VISITA.
Main data
| Reference | 30721688-28 |
| Ad date | 30/10/2025 |
| Contract | Sale |
| Typology | Commercial Premises |
| Surface | 94 m2 |
| Locals | more than 5 (6 other), 4 bathrooms |
| Plan | On several levels, 3 totals |
| Occupied | Free |
| Garage | Absent |
| Furniture | Absent |
Costs
| Price | 28.000 € |
| Price per m2 | 298 €/m2 |
Energy efficiency
| Status | Good |
| Heating | Absent |
| Heating Power Type | Other |
| Energy rating | G |
| Energy Performance Index (IPE) | - |
Floor plans
Address and map
via vittorio emanuele
310, Biancavilla
Ad without map,
try asking the advertiser for the position
try asking the advertiser for the position
Mortgage calculation
Selling price:
Advance
20,00
Mortgage
80,00
Rate: -+
Payment: 80 per month
The results are an indicative estimate based on the data entered and do not constitute a financial offer.
Advertiser
Call
CONTACT


