Commercial Premises Via Cannaiola 1, Trevi
€ 190.000
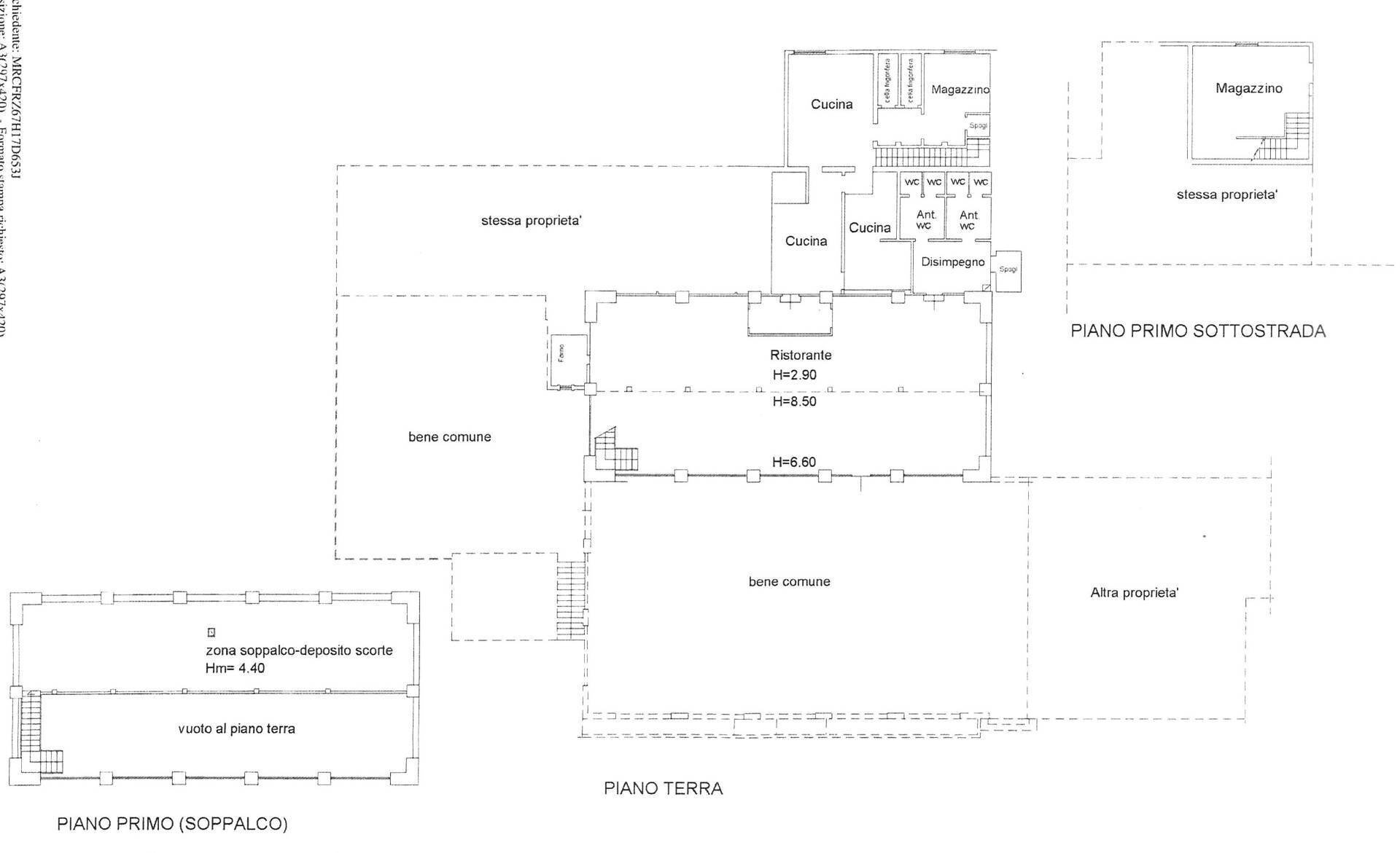
In località Borgo Trevi, a pochi passi da Piazza della Concordia e dalla Flaminia, proponiamo in vendita un affascinante locale commerciale di circa 450 mq, con terrazzo di 150mq e locali accessori. Una proprietà unica, caratterizzata da grande presenza scenica, storia e versatilità degli spazi. Il complesso nasce da un ex fienile storico del 1904, sapientemente conservato nei suoi elementi architettonici più caratteristici, a cui si affianca una porzione edificata negli anni 70. Laccesso avviene attraverso lampio terrazzo, ideale per eventi, degustazioni o attività allaperto; da qui si entra nella grande sala principale, con soppalco a vista, camino, forno a legna, altezze importanti e travi a vista, che donano calore e unicità allambiente. Completano la proprietà un'ampia zona cucina, quattro servizi con antibagno e due magazzini comunicanti (circa 65 mq) con ulteriore ingresso indipendente. Ampio parcheggio antistante e posizione di forte passaggio e massima visibilità, rendono questa soluzione ideale per attività ricettive o commerciali di prestigio. La struttura, fino ad oggi allestita come ristorante, si presta perfettamente anche a showroom, galleria, concept store, spazio eventi, coworking o sede rappresentativa. A parte è acquistabile una torretta adiacente, attualmente utilizzata come enoteca, perfetta per estendere lattività principale o sviluppare un progetto autonomo e complementare. Un immobile storico, scenografico e di grande charme, pensato per chi cerca uno spazio identitario e riconoscibile nel cuore dellUmbria.
Main data
| Reference | CBI196-3021-29 |
| Ad date | 29/10/2025 |
| Contract | Sale |
| Typology | Commercial Premises |
| Surface | 450 m2 |
| Locals | 5 (5 other), 4 bathrooms |
| Plan | Earth |
| Occupied | Free |
| Garage | Absent |
| Furniture | Partial |
Costs
| Price | 190.000 € |
| Price per m2 | 422 €/m2 |
Energy efficiency
| Status | Excellent |
| Heating Power Type | Other |
| Energy rating | Property exempt from energy certification |
Floor plans
Address and map
Via Cannaiola
1, Trevi
Ad without map,
try asking the advertiser for the position
try asking the advertiser for the position
Mortgage calculation
Selling price:
Advance
20,00
Mortgage
80,00
Rate: -+
Payment: 543 per month
The results are an indicative estimate based on the data entered and do not constitute a financial offer.
Advertiser
Call
CONTACT


