Apartment Via Ghiarettolo, Sarzana
€ 230.0006 locali in vendita
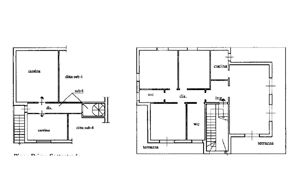
Sarzana - proponiamo in vendita semindipendente con tre camere, ampia balconata e posto auto.
L'immobile, posto al piano primo, si apre su un corridoio che conduce ad un ampio soggiorno luminoso aperto sull'angolo cottura e alla zona notte dove troviamo due camere matrimoniali, una cameretta, un bagno padronale e uno di servizio, entrambi finestrati. Inoltre sono presenti due ampi balconi uno dal quale si può accedere dalla zona giorno e uno da una delle camere matrimoniali.
Completano la proprietà un posto auto e due cantine, una delle quali dotata di cucina e camino.
L'immobile necessità di lavori di riqualificazione.
La zona è comoda ai servizi ma defilata da strade di grossa percorrenza.
L'immobile, posto al piano primo, si apre su un corridoio che conduce ad un ampio soggiorno luminoso aperto sull'angolo cottura e alla zona notte dove troviamo due camere matrimoniali, una cameretta, un bagno padronale e uno di servizio, entrambi finestrati. Inoltre sono presenti due ampi balconi uno dal quale si può accedere dalla zona giorno e uno da una delle camere matrimoniali.
Completano la proprietà un posto auto e due cantine, una delle quali dotata di cucina e camino.
L'immobile necessità di lavori di riqualificazione.
La zona è comoda ai servizi ma defilata da strade di grossa percorrenza.
Main data
| Reference | 61131563 |
| Ad date | 28/10/2025 |
| Contract | Sale |
| Typology | Apartment |
| Surface | 170 m2 |
| Locals | more than 5 (6 other), 2 bathrooms |
| Plan | 1 from 2 totals |
Costs
| Price | 230.000 € |
| Price per m2 | 1.353 €/m2 |
Energy efficiency
| Year built | 1975 |
| Heating | Autonomous |
| Heating Power Type | Methane |
| Energy rating | G |
| Energy Performance Index (IPE) | - |
Floor plans
Video
Address and map
Via Ghiarettolo, Sarzana
Mortgage calculation
Selling price:
Advance
20,00
Mortgage
80,00
Rate: -+
Payment: 658 per month
The results are an indicative estimate based on the data entered and do not constitute a financial offer.
Advertiser
Call
CONTACT

