Warehouse VIA GAETANO DONIZETTI 73R, Genova
€ 55.000Capannone / Fondo - Magazzino a Sestri Ponente, Genova
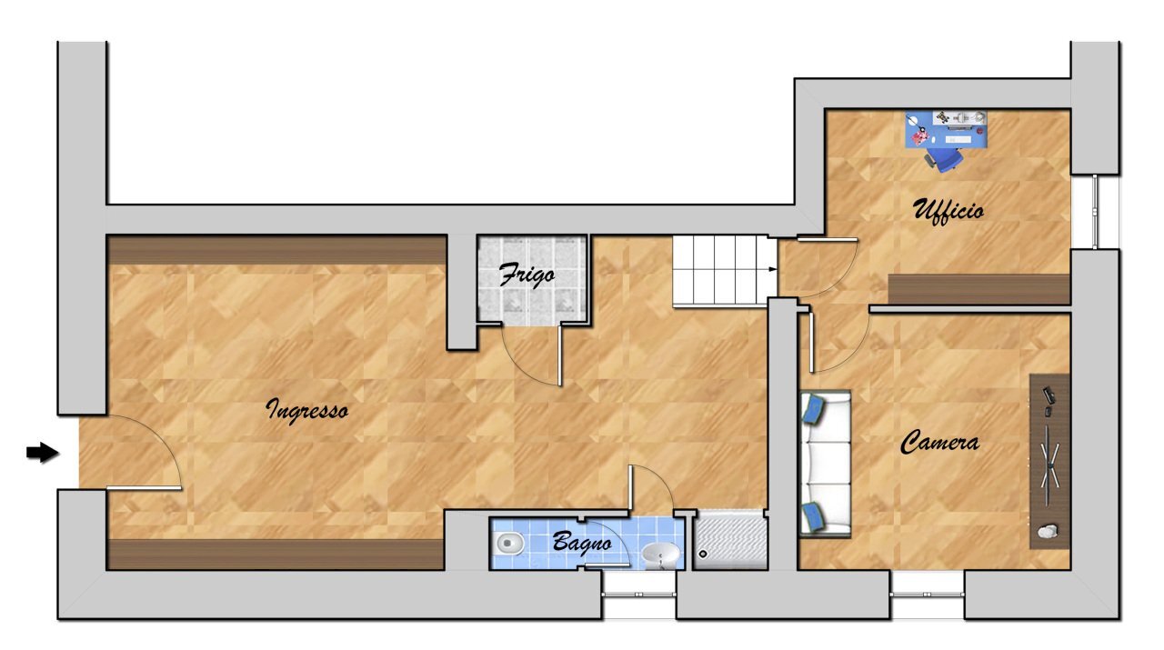
Via Donizetti – Locale uso magazzino in posizione centralissima Nel cuore del quartiere, in Via Donizetti, proponiamo in vendita un fondo (categoria catastale C/2), ideale come magazzino o deposito. L’immobile si presenta con un ampio vano d’ingresso, luminoso e facilmente accessibile, dal quale si accede – tramite pochi gradini – a una seconda area utilizzabile come ufficio o spazio operativo. Completano la proprietà un servizio igienico dotato di doccia e le buone condizioni interne, che rendono il locale pronto per essere utilizzato sin da subito. Il punto di forza principale è la posizione centralissima, comoda a tutti i servizi e al passaggio pedonale della zona. La nostra agenzia è iscritta alla Federazione Italiana Agenti Immobiliari Professionali al numero 30531 ed è specializzata in compravendite, locazioni e fornisce un comodo servizio di valutazioni gratuite. Altre informazioni, visitando il nostro sito internet www.agenziaghirardi.com
Main data
| Reference | 3418 |
| Ad date | 23/10/2025 |
| Contract | Sale |
| Typology | Warehouse |
| Surface | 81 m2 |
| Locals | 2 (2 other), 1 bathroom |
| Plan | 1 totals |
Costs
| Price | 55.000 € |
| Price per m2 | 679 €/m2 |
| Condominium fees | €20,00/month |
Energy efficiency
| Energy rating | In the calculation phase |
Floor plans
Address and map
VIA GAETANO DONIZETTI 73R, Genova
Mortgage calculation
Selling price:
Advance
20,00
Mortgage
80,00
Rate: -+
Payment: 157 per month
The results are an indicative estimate based on the data entered and do not constitute a financial offer.
Advertiser

Agenzia Ghirardi Sas
Via Sestri 52, Genova
Show Phone
Call
CONTACT

