Three-room apartment Quartu Sant'Elena
€ 228.000Appartamento - 3 Locali a Quartu Sant'Elena
Quartu Sant'Elena - Pressi Via Cagliari:
In zona servitissima e a pochi passi da tutti i servizi proponiamo in vendita due appartamenti, di nuova costruzione, al secondo piano di tipologia trilocale in un condominio di solo 6 unità abitative e servito da ascensore.
Ogni appartamento è progettato con cura per offrirti il massimo del comfort e sarà così composto:
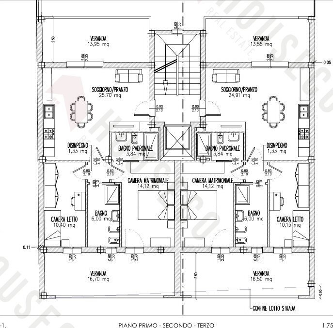
-Zona living open-space con angolo cottura a vista, perfetta per momenti di relax e convivialità, che si apre su una veranda spaziosa di 14 mq
-Due camere da letto, di cui una matrimoniale e una singola, ideali per accogliere tutta la famiglia o per uno studio privato
-Un bagno, moderno e funzionale, per garantire comfort in ogni momento della giornata, con la possibilità di un secondo bagno.
-Una seconda veranda di circa 17 mq, uno spazio esterno ideale per godere del clima mediterraneo e realizzare il tuo angolo barbecue grazie alla predisposizione per la canna fumaria.
Ogni dettaglio è pensato per il risparmio energetico e il comfort:
-Climatizzazione multi split, per gestire la temperatura in ogni ambiente.
-Impianto fotovoltaico da 1,20/1,50 KW per una casa ecosostenibile.
-Videocitofono e scaldabagno a pompa di calore, per un'efficienza energetica superiore.
-Posto auto e cantina inclusi, con possibilità di acquistare un box auto separatamente.
Vivi la comodità, il risparmio e la tranquillità che solo una nuova costruzione può offrirti. Non perdere questa opportunità di acquistare una casa che ha tutto ciò che desideri.
Consegna prevista primavera 2027
Possibilità di scelta delle rifiniture da capitolato.
Classe energetica A.
Euro a partire da 228.000,00 + IVA.
In zona servitissima e a pochi passi da tutti i servizi proponiamo in vendita due appartamenti, di nuova costruzione, al secondo piano di tipologia trilocale in un condominio di solo 6 unità abitative e servito da ascensore.
Ogni appartamento è progettato con cura per offrirti il massimo del comfort e sarà così composto:
-Zona living open-space con angolo cottura a vista, perfetta per momenti di relax e convivialità, che si apre su una veranda spaziosa di 14 mq
-Due camere da letto, di cui una matrimoniale e una singola, ideali per accogliere tutta la famiglia o per uno studio privato
-Un bagno, moderno e funzionale, per garantire comfort in ogni momento della giornata, con la possibilità di un secondo bagno.
-Una seconda veranda di circa 17 mq, uno spazio esterno ideale per godere del clima mediterraneo e realizzare il tuo angolo barbecue grazie alla predisposizione per la canna fumaria.
Ogni dettaglio è pensato per il risparmio energetico e il comfort:
-Climatizzazione multi split, per gestire la temperatura in ogni ambiente.
-Impianto fotovoltaico da 1,20/1,50 KW per una casa ecosostenibile.
-Videocitofono e scaldabagno a pompa di calore, per un'efficienza energetica superiore.
-Posto auto e cantina inclusi, con possibilità di acquistare un box auto separatamente.
Vivi la comodità, il risparmio e la tranquillità che solo una nuova costruzione può offrirti. Non perdere questa opportunità di acquistare una casa che ha tutto ciò che desideri.
Consegna prevista primavera 2027
Possibilità di scelta delle rifiniture da capitolato.
Classe energetica A.
Euro a partire da 228.000,00 + IVA.
Main data
| Reference | IM-2709 |
| Ad date | 27/09/2023 |
| Contract | Sale |
| Typology | Apartment |
| Surface | 94 m2 |
| Locals | 3 (2 bedrooms, 1 other), 1 bathroom |
| Plan | 1 totals |
| Number of balconies | 1 |
| Number of parking spaces | 1 |
Costs
| Price | 228.000 € |
| Price per m2 | 2.426 €/m2 |
Energy efficiency
| Year built | 2024 |
| Energy rating | A |
| Energy Performance Index (IPE) | - |
Floor plans
Address and map
Quartu Sant'Elena
Ad without map,
try asking the advertiser for the position
try asking the advertiser for the position
Mortgage calculation
Selling price:
Advance
20,00
Mortgage
80,00
Rate: -+
Payment: 652 per month
The results are an indicative estimate based on the data entered and do not constitute a financial offer.
Advertiser

House Co. Italia S.r.L.
Via Cecoslovacchia 11, Quartu Sant'Elena
Show Phone
Show Mobile
Call
CONTACT

