Commercial Premises Via Fratelli Philips 11, Bari
€ 1.500.000Capannone - Industriale a Zona industriale, Bari
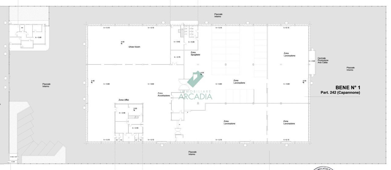
Capannone in vendita a Bari zona industriale di circa 4300 mq. A Bari nella zona industriale, ricadente nell'agglomerato gestito del consorzio ASI, proponiamo in vendita un capannone con uffici, portineria e casa custode per un totale di superficie coperta di circa 4300 mq.. L'immobile, realizzato in gettata d'opera negli anni '70 ed in fase di ristrutturazione generale, è provvisto di un ampio piazzale, totalmente recintato, di circa 5000 mq al quale vi si si accede attraverso un ampio cancello carrabile posto sul fronte. Il capannone, uilizzato precedentemente per una attività di assistenza e vendita di autovetture, ha una altezza utile sotto trave di 6 mt ed è dotato di dieci portoni carrabili . L'immobile, agevolmente raggiungibile dall'aeroporto di Bari, dalla ss. 16 (tangenziale di Bari), dall'autostrada A14 Bologna-Taranto, ricade in un’area urbanizzata, ben servita e vicina ad altre attività industriali; attualmente locato con contratto del 2023 Per valutare la proposta commerciale personalizzata sulle vostre esigenze, è possibile chiamare il numero di Arcadia Immobiliare - 080.5041523 oppure prenotare una visita direttamente dal sito arcadiaimmobiliare.it
Main data
| Reference | 11622/2022-bis |
| Ad date | 12/09/2022 |
| Contract | Sale |
| Typology | Commercial Premises |
| Surface | 4370 m2 |
| Locals | 1 (1 other), 7 bathrooms |
| Plan | 1 totals |
Costs
| Price | 1.500.000 € |
| Price per m2 | 343 €/m2 |
Energy efficiency
| Year built | 1971 |
| Energy rating | Property exempt from energy certification |
Floor plans
Address and map
Via Fratelli Philips 11, Bari
Mortgage calculation
Selling price:
Advance
20,00
Mortgage
80,00
Rate: -+
Payment: 4.290 per month
The results are an indicative estimate based on the data entered and do not constitute a financial offer.
Advertiser

Arcadia Immobiliare
Via Jose Maria Escrivà 28, Bari
Show Phone
Show Mobile
Call
CONTACT

