Office corso Unione Sovietica, 612/15, Torino (neighborhood Mirafiori Sud)
€ 300.000Locale mq. 273 e 2 posti auto coperti
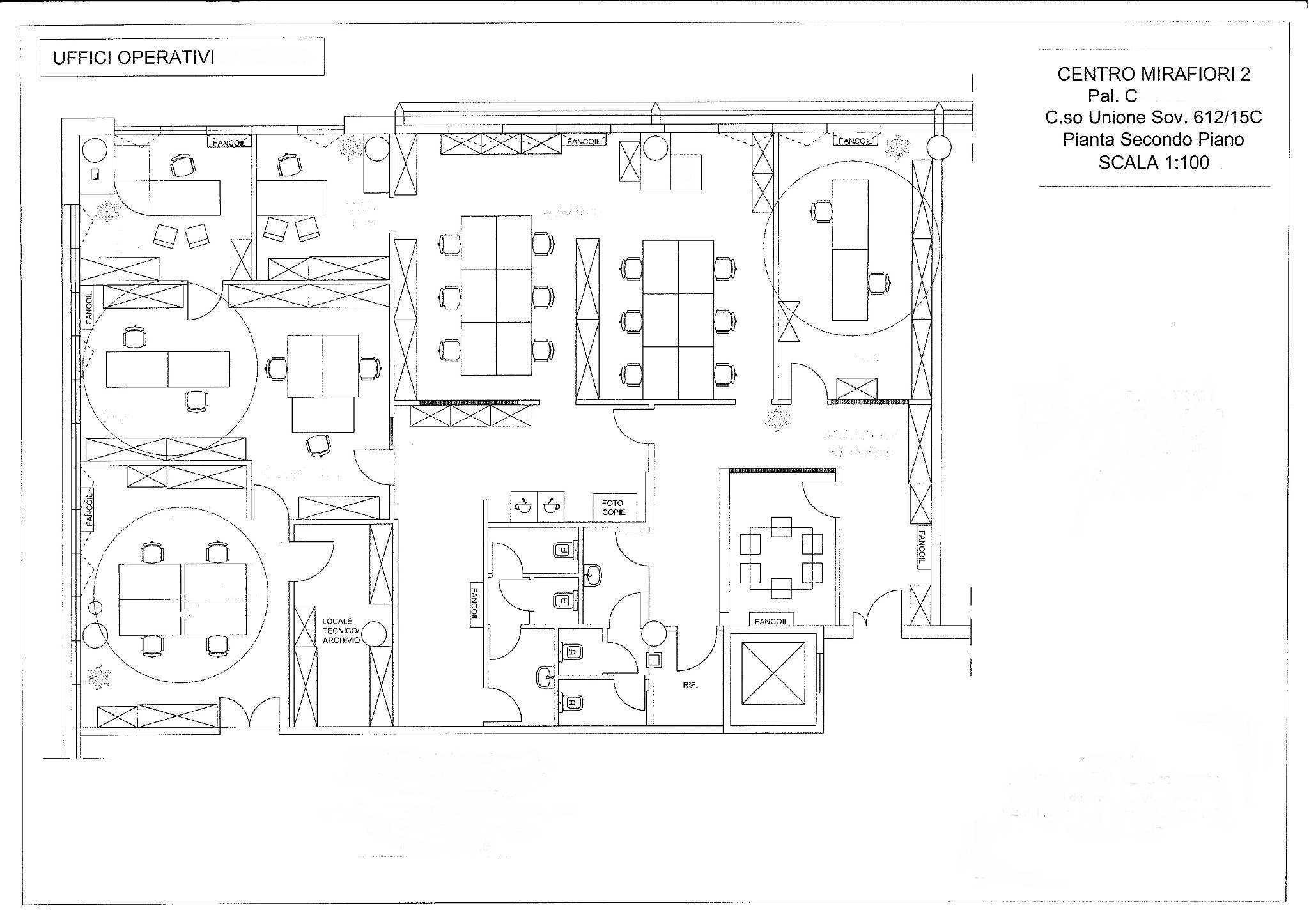
TORINO CORSO UNIONE SOVIETICA nel Centro Mirafiori 2 proponiamo in vendita locale ad uso ufficio, laboratorio, show-room di mq. 273 circa con servizi al piano secondo e 2 posti auto al piano secondo interrato. Il locale, originariamente open-space, è suddiviso internamente in reception, 7 vani, 2 servizi doppi, disimpegno e sala server. Doppi ingressi. Canalizzazione sotto la pavimentazione per il cablaggio telematico, impianto videocitofonico, impianto di climatizzazione/riscaldamento tramite fan coil, controsoffittature in pannelli di fibra minerale fono-assorbente con integrati elementi illuminanti. Connessione alla fibra ottica. Doppi ascensori e montacarichi. Possibilità di ulteriori posti auto coperti al piano interrato. Il locale è sito nel grande complesso produttivo direttivo industriale di Torino Mirafiori che raggruppa i complessi “CENTRO UFFICI MIRAFIORI”, “CENTRO MIRAFIORI 2” e “CENTRO DEL DROSSO” con superficie totale di oltre mq. 75.000 di prestigiosi locali sede di importanti aziende multinazionali, ubicato in posizione strategica in prossimità dell'uscita Stupinigi della Tangenziale SUD di Torino, arteria principale di collegamento con le autostrade A4 - A5 - A6 - A21 - A32, ma comodo per raggiungere rapidamente il centro città in auto o con mezzi pubblici urbani (prossimità capolinea Linea 4 Metropolitana Leggera) ed extra-urbani, e situato a poca distanza dal Centro Commerciale "I Viali" di Nichelino e dal grande Centro Commerciale "Le Fornaci" di Beinasco. Il CENTRO MIRAFIORI 2 è servito da varie attività di servizio quali bar, ristoranti, self service, asilo, asilo nido e palestre e dispone di servizio di guardiania notturna e videosorveglianza. Per appuntamenti e maggiori informazioni: STUDIO TECNICO IMMOBILIARE TORTA 0115612077 - 3357888299 - www.immobiliaretorta.it - Aderente FIMAA
Main data
| Reference | VEN CM2 273T |
| Ad date | 21/10/2025 |
| Contract | Sale |
| Typology | Office |
| Surface | 273 m2 |
| Plan | 1 totals |
| Construction type | Signorile |
| Real estate use | Commercial |
Costs
| Price | 300.000 € |
| Price per m2 | 1.099 €/m2 |
Energy efficiency
| Heating | Centralized |
| Energy rating | C |
| Energy Performance Index (IPE) | 65 kWh/m2 year |
Floor plans
Address and map
corso Unione Sovietica, 612/15, Torino - neighborhood Mirafiori Sud
Mortgage calculation
Selling price:
Advance
20,00
Mortgage
80,00
Rate: -+
Payment: 858 per month
The results are an indicative estimate based on the data entered and do not constitute a financial offer.
Advertiser
Call
CONTACT


