Building land Mombaroccio
€ 71.000
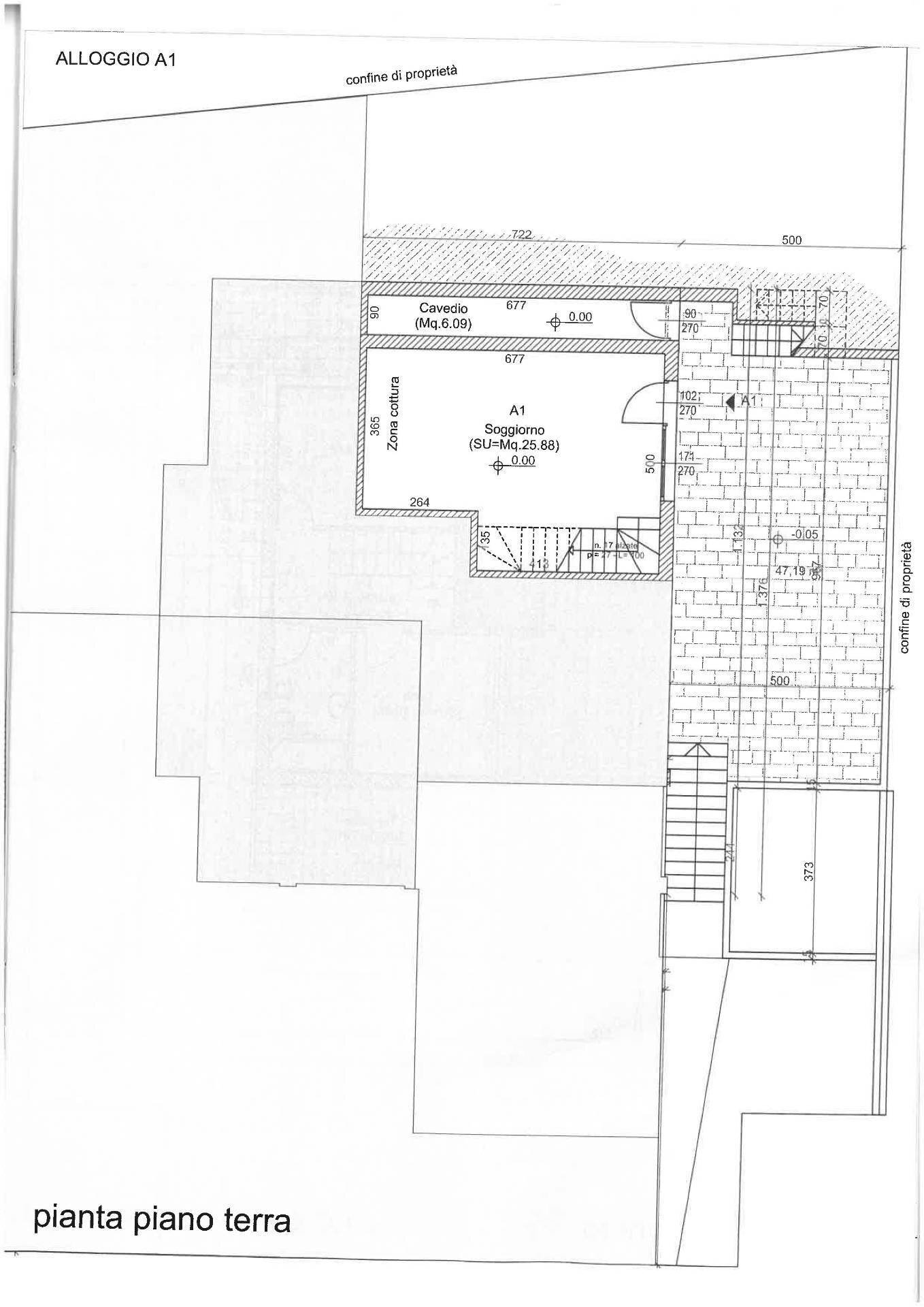
Mombaroccio - ag. ZF Mediazioni Immobiliari propone lotto panoramico di terreno edificabile con progetto per realizzazione bifamiliare / trifamiliare con possibilità di piscina esterna. Dati lotto : SUPERFICIE 715 MQ - V = 740 MC - SU = 246 MQ ultimo lotto da edificare in piano di lottizzazione convenzionata in zona di espansione residenziale di nuovo impianto edilizio C2 già realizzato comprese opere viarie ed accesorie. Contatto Francesco 346/7480725.
Main data
| Reference | VFT00022 |
| Ad date | 22/10/2025 |
| Contract | Sale |
| Typology | Building land |
| Surface | 715 m2 |
| Occupied | Free |
Costs
| Price | 71.000 € |
| Price per m2 | 99 €/m2 |
Energy efficiency
| Heating Power Type | Other |
| Energy rating | Property exempt from energy certification |
Address and map
Mombaroccio
Ad without map,
try asking the advertiser for the position
try asking the advertiser for the position
Mortgage calculation
Selling price:
Advance
20,00
Mortgage
80,00
Rate: -+
Payment: 203 per month
The results are an indicative estimate based on the data entered and do not constitute a financial offer.
Advertiser

La Pesarese
V.le XII Settembre 44, Fano
Show Phone
Show Mobile
Call
CONTACT

