Shop Corso vittorio emanuele ii, 73/h, Torino
€ 350.000Negozio in vendita a Torino corso vittorio emanuele ii, 73/h
In palazzo signorile a pochi passi dalla stazione di Porta Nuova, in posizione di estrema visibilità,
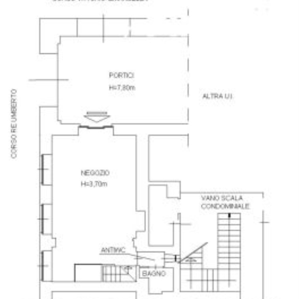
Vendiamo muri negozio di mq catastali 155
Con accesso da Corso Vittorio Emanuele II e 3 vetrine su corso Re Umberto.
Il locale si sviluppa su 2 livelli collegati da scala interna così composti:
Al piano terreno ampio locale con bagno e antibagno
Al piano interrato 2 ampi locali uso deposito, 1 uso magazzino, disimpegno, bagno e antibagno.
Per questo piano, che ha l’uscita di sicurezza nei locali condominiali, sono stati predisposti progetti
E preventivi per l’areazione in modo da poterlo utilizzare non solo come magazzino ma anche per accogliere i clienti.
Non c’è canna fumaria e non si può installare.
Da regolamento di condominio non è possibile svolgere attività di ristorazione
Spese condominiali Consuntivo 05/2024 - 04/2025 € 1.060,99
Riscaldamento centralizzato
Spese riscaldamento consuntivo 2024/2025 € 2.330,77 di cui quota fissa € 453,67
Classe energetica d Epgl,nren 244,47
L’immobile è dotato di certificazione di conformità urbanistica e catastale, di dichiarazione di conformità dell’impianto elettrico e nel 2025 è stata eseguita la verifica periodica della messa a terra.
Vendiamo muri negozio di mq catastali 155
Con accesso da Corso Vittorio Emanuele II e 3 vetrine su corso Re Umberto.
Il locale si sviluppa su 2 livelli collegati da scala interna così composti:
Al piano terreno ampio locale con bagno e antibagno
Al piano interrato 2 ampi locali uso deposito, 1 uso magazzino, disimpegno, bagno e antibagno.
Per questo piano, che ha l’uscita di sicurezza nei locali condominiali, sono stati predisposti progetti
E preventivi per l’areazione in modo da poterlo utilizzare non solo come magazzino ma anche per accogliere i clienti.
Non c’è canna fumaria e non si può installare.
Da regolamento di condominio non è possibile svolgere attività di ristorazione
Spese condominiali Consuntivo 05/2024 - 04/2025 € 1.060,99
Riscaldamento centralizzato
Spese riscaldamento consuntivo 2024/2025 € 2.330,77 di cui quota fissa € 453,67
Classe energetica d Epgl,nren 244,47
L’immobile è dotato di certificazione di conformità urbanistica e catastale, di dichiarazione di conformità dell’impianto elettrico e nel 2025 è stata eseguita la verifica periodica della messa a terra.
Main data
| Reference | VT261 |
| Ad date | 21/10/2025 |
| Contract | Sale |
| Typology | Shop |
| Surface | 155 m2 |
| Locals | 4 (4 other), 2 bathrooms |
Costs
| Price | 350.000 € |
| Price per m2 | 2.258 €/m2 |
Energy efficiency
| Energy rating | Property exempt from energy certification |
Floor plans
Address and map
Corso vittorio emanuele ii, 73/h, Torino
Mortgage calculation
Selling price:
Advance
20,00
Mortgage
80,00
Rate: -+
Payment: 1.001 per month
The results are an indicative estimate based on the data entered and do not constitute a financial offer.
Advertiser
Call
CONTACT


