Villa Trav. Pizzuta, Siracusa
€ 420.000
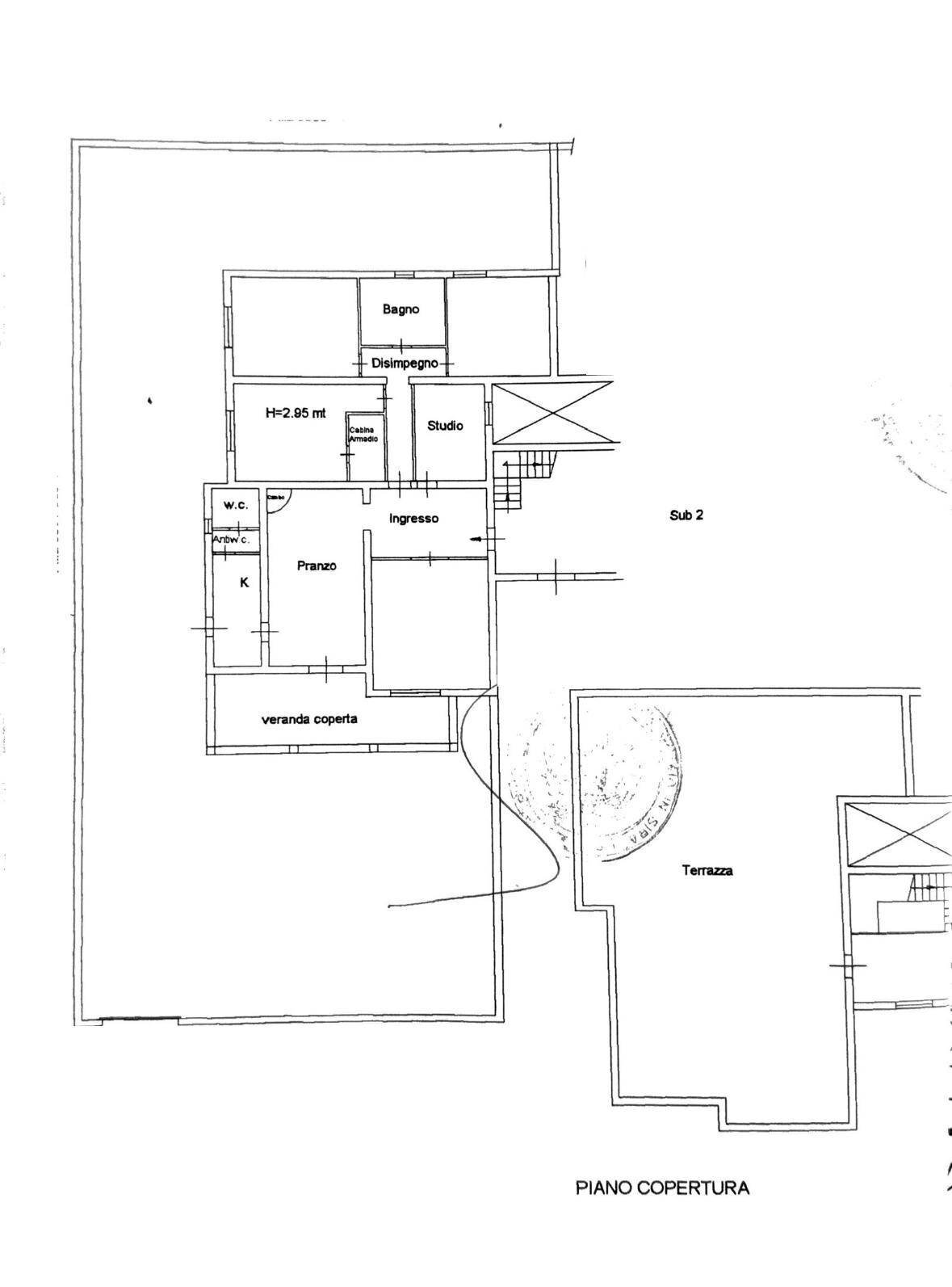
Villino ristrutturato in vendita Contrada Pizzuta, Siracusa In una delle zone residenziali più apprezzate di Siracusa, Contrada Pizzuta, a pochi minuti dal centro città e a pochi passi dallo splendido mare di Ortigia, proponiamo in vendita un elegante villino indipendente interamente disposto su un unico livello, privo di barriere architettoniche e ristrutturato circa cinque anni fa. Limmobile si sviluppa su una superficie complessiva di 223 m² e si distingue per gli spazi ampi e funzionali, ideali anche per persone con mobilità ridotta. Composizione interna: Ingresso su ampia zona living con camino e accesso diretto alla veranda coperta di circa 25 m² Cucina abitabile Quattro camere da letto matrimoniali e una cameretta Due bagni, di cui uno di generose dimensioni (circa 10 m²) Una delle camere matrimoniali è dotata di comoda cabina armadio finestrata Spazi esterni: La proprietà comprende una terrazza di circa 200 m² e un giardino curato di 1.200 m² che si sviluppa su tre lati dellabitazione, offrendo privacy e ampi spazi allaperto ideali per momenti di relax o per ospitare familiari e amici. Dotazioni e comfort: Riscaldamento autonomo a metano con radiatori Climatizzazione caldo/freddo in ogni ambiente Predisposizione per impianto dallarme Antenna TV e satellitare, linea telefonica Infissi in alluminio con vetrocamera e persiane regolabili Acqua potabile e fossa Imhoff Prezzo richiesto: 420.000 interamente mutuabili Unabitazione ideale per chi cerca comfort, indipendenza e vicinanza al mare, in una zona tranquilla ma strategica, a due passi dal centro di Siracusa e dallintramontabile fascino di Ortigia. ð Per ulteriori informazioni o per fissare una visita, contattaci.
Main data
| Reference | GA1561 |
| Ad date | 19/10/2025 |
| Contract | Sale |
| Typology | Villa |
| Surface | 230 m2 |
| Locals | more than 5 (5 bedrooms, 2 other), 2 bathrooms, kitchen kitchenette |
| Plan | Earth, 1 totals |
| Construction type | Average |
| Occupied | Free |
| Garage | Absent |
| Number of parking spaces | 2 |
| Furniture | Partial |
Costs
| Price | 420.000 € |
| Price per m2 | 1.826 €/m2 |
Energy efficiency
| Status | Partially restored |
| Heating | Autonomous |
| Energy rating | F |
| Energy Performance Index (IPE) | 71 kWh/m2 year |
Floor plans
Address and map
Trav. Pizzuta, Siracusa
Ad without map,
try asking the advertiser for the position
try asking the advertiser for the position
Mortgage calculation
Selling price:
Advance
20,00
Mortgage
80,00
Rate: -+
Payment: 1.201 per month
The results are an indicative estimate based on the data entered and do not constitute a financial offer.
Advertiser
Gazzara Immobiliare
via Umberto 239, Canicattini Bagni
Show Phone
Show Mobile
Call
CONTACT

