Four-room apartment via Cavallotti, Fabriano
€ 75.000
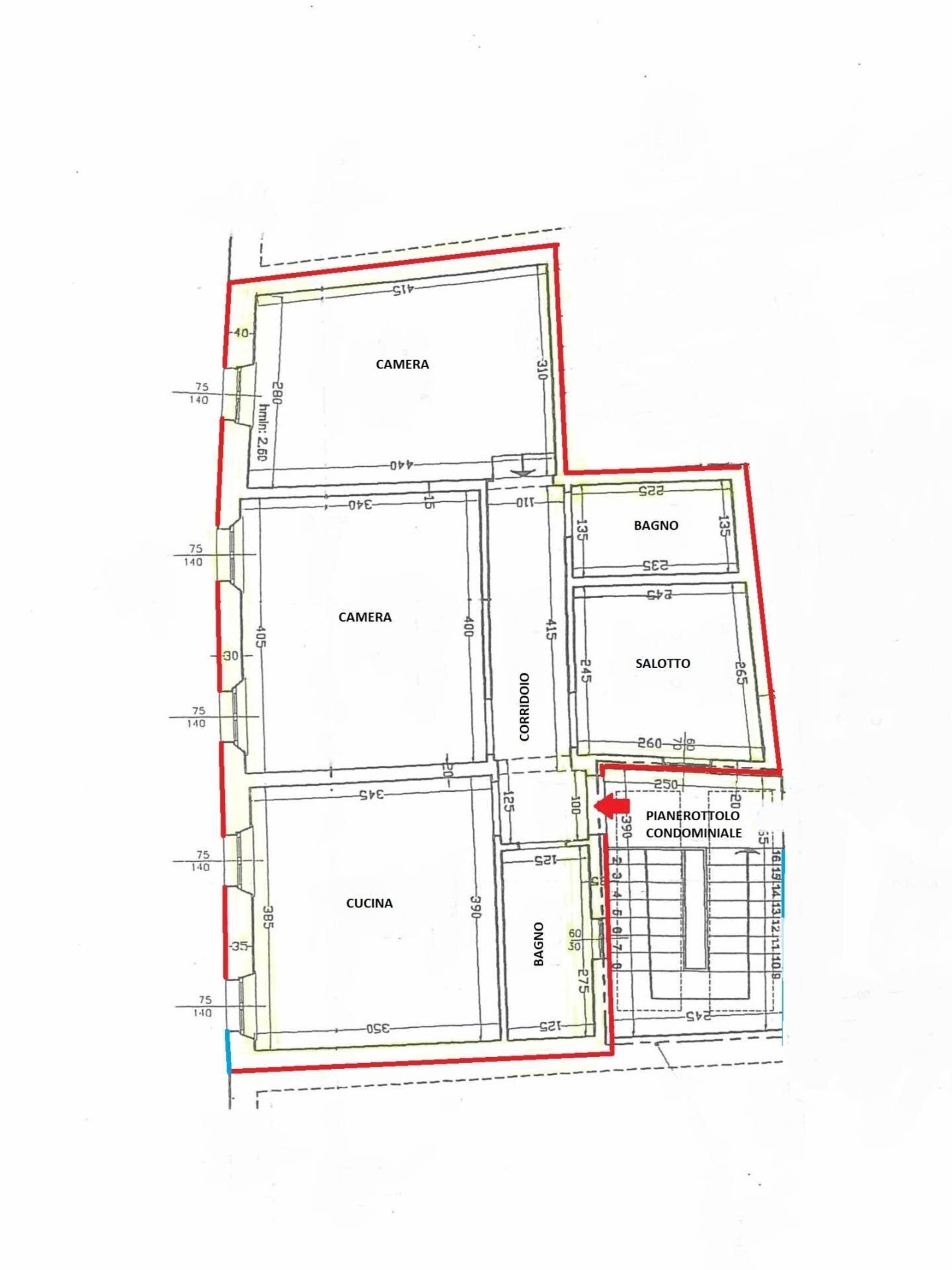
A Fabriano L'Agenzia Immobiliare Ninno vende un'abitazione ubicata in zona centrale al secondo ed ultimo piano di una palazzina che ospita 4 appartamenti in totale. Dispone di soggiorno con cucina a vista, due camere matrimoniali, doppi servizi (di cui uno con vasca e l'altro con doccia), oltre ad un ulteriore stanza da adibire a studio o comodo ripostiglio. Tutti gli ambienti sono confortevoli e luminosi. Abitabile da subito con possibilità di mantenere gli arredi presenti, ottimo anche come investimento per affitti. La proposta si completa di magazzino di mq. 13 al piano terra con un accesso anche da via pubblica. La posizione è nei pressi dell'ospedale e Piazzale Matteotti, con parcheggi e servizi cittadini nei paraggi. È in vendita anche l'appartamento adiacente sullo stesso pianerottolo, che si può prendere in considerazione come doppia residenza o unendo le due unità per realizzarne una più ampia, per maggior chiarezza consigliamo di visionare il codice annuncio A084 del nostro sito ninnoimmobiliare.it
Main data
| Reference | A201 |
| Ad date | 19/10/2025 |
| Contract | Sale |
| Typology | Apartment |
| Surface | 65 m2 |
| Locals | 4 (2 bedrooms, 2 other), 2 bathrooms, kitchen habitable |
| Plan | 2 from 2 totals |
| Construction type | Signorile |
| Occupied | Free |
| Garage | Absent |
| Furniture | Complete |
Costs
| Price | 75.000 € |
| Price per m2 | 1.154 €/m2 |
Energy efficiency
| Status | Excellent |
| Heating | Autonomous |
| Energy rating | E |
| Energy Performance Index (IPE) | 124 kWh/m2 year |
Floor plans
Address and map
via Cavallotti, Fabriano
Ad without map,
try asking the advertiser for the position
try asking the advertiser for the position
Mortgage calculation
Selling price:
Advance
20,00
Mortgage
80,00
Rate: -+
Payment: 214 per month
The results are an indicative estimate based on the data entered and do not constitute a financial offer.
Advertiser

Ninno Servizi Immobiliari Sas
Viale Aristide Merloni 33/A, Fabriano
Show Phone
Show Mobile
Call
CONTACT

