Independent house via Umberto I, 7, Rocca de' Baldi
€ 45.000Terratetto a Rocca De Baldi
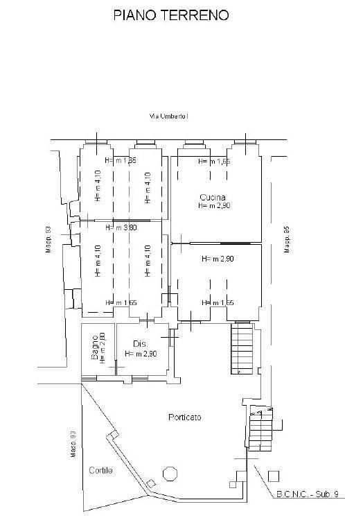
Proponiamo in vendita un terratetto situato nel cuore di Rocca de' Baldi, ideale per chi cerca un investimento o una soluzione abitativa versatile con ampi spazi. L'immobile si compone di due appartamenti distinti. Il Piano Terra offre una zona giorno con cucina e soggiorno, due camere da letto, un bagno e un porticato coperto, funzionale per momenti all'aperto. Il Piano Primo, accessibile tramite scala esterna, include una cucina, tre camere, un bagno e un terrazzo anch'esso coperto. Completano la proprietà una cantina al piano seminterrato e una cellula, utili per stoccaggio o altri usi. L'immobile necessita di ristrutturazione, offrendo la possibilità di personalizzare gli spazi secondo le proprie esigenze e creare unità abitative moderne. La posizione centrale garantisce facile accesso ai servizi del paese. Un'opportunità concreta per realizzare il vostro progetto immobiliare in una posizione strategica. Contattateci per maggiori informazioni e per fissare una visita. Tutte le informazioni contenute negli annunci immobiliari (caratteristiche tecniche, disposizione degli ambienti, accessori, dotazioni, ecc…) potrebbero non corrispondere in parte allo stato di fatto attuale dell'immobile. Inoltre, i vari portali immobiliari utilizzano diversi criteri per la pubblicazione dello stesso annuncio che può generare differenze sui dati inseriti dalla Dielle Studiocasa S.A.S. e la stessa declina ogni responsabilità per eventuali involontarie incoerenze. Nota: Alcune delle foto presenti in questo annuncio sono state digitalmente rielaborate per mostrare potenziali arredamenti e finiture, al fine di aiutarti a immaginare la trasformazione futura dell'immobile.
Main data
| Reference | 1266 |
| Ad date | 13/10/2025 |
| Contract | Sale |
| Typology | Independent house |
| Surface | 222 m2 |
| Locals | more than 5 (5 bedrooms, 3 other), 2 bathrooms, kitchen habitable |
| Plan | 2 totals |
| Construction type | Popular |
| Number of terraces | 1 |
| Number of parking spaces | 1 |
| Furniture | Absent |
Costs
| Price | 45.000 € |
| Price per m2 | 203 €/m2 |
Energy efficiency
| Year built | 1940 |
| Status | To be restored |
| Heating | Autonomous |
| Energy rating | F |
| Energy Performance Index (IPE) | 216.82 kWh/m2 year |
Floor plans
Address and map
via Umberto I, 7, Rocca de' Baldi
Mortgage calculation
Selling price:
Advance
20,00
Mortgage
80,00
Rate: -+
Payment: 129 per month
The results are an indicative estimate based on the data entered and do not constitute a financial offer.
Advertiser

Dielle Studiocasa
Corso Italia 2, Mondovì
Show Phone
Call
CONTACT

