Townhouse Via del Ponticino, Vernio
€ 49.000Semindipendente - Terratetto a Vernio
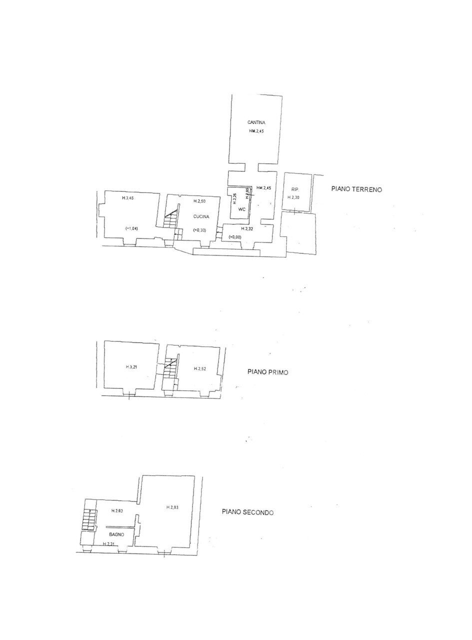
Terratetto con piccolo resede anteriore composto da più piani e composto da vani 6 oltre servizio, accessori, cantina e un ripostiglio. Possibilità di acquisto di un terreno agricolo vicino all'abitazione, di circa mq. 2.000 con vigne e alberi da frutto. Per motivi di privacy l'indirizzo non corrisponde alla reale ubicazione. Il nostro ufficio è aperto dal lunedì al venerdì dalle 9,00 alle 13,00 e dalle 15,00 alle 19,00. Il sabato mattina su appuntamento. Per ulteriori informazioni ci potete contattare allo 0574/946052.
Main data
| Reference | 66 |
| Ad date | 14/10/2025 |
| Contract | Sale |
| Typology | Townhouse |
| Surface | 125 m2 |
| Locals | more than 5 (3 bedrooms, 3 other) |
| Plan | 1 totals |
Costs
| Price | 49.000 € |
| Price per m2 | 392 €/m2 |
Energy efficiency
| Energy rating | G |
Floor plans
Address and map
Via del Ponticino, Vernio
Mortgage calculation
Selling price:
Advance
20,00
Mortgage
80,00
Rate: -+
Payment: 140 per month
The results are an indicative estimate based on the data entered and do not constitute a financial offer.
Advertiser

Spazio Casa Studio Immobiliare s.a.s.
Via Borgonuovo, 4/B, Vaiano
Show Phone
Show Mobile
Call
CONTACT

