Portion of a house Via Cristoforo Colombo 63, Narzole
Private negotiationSemindipendente - Porzione di casa a Narzole
A Narzole porzione di casa da ultimare con possibilità di personalizzazione degli spazi e delle finiture.
Situata in una zona tranquilla e ben collegata questa soluzione offre la libertà di progettare gli interni su misura, scegliendo la disposizione degli ambienti e i materiali di finitura secondo il proprio gusto e le proprie esigenze.
L'immobile offre ampie dimensioni e una distribuzione funzionale, sviluppandosi su più piani con molta luce naturale grazie alle grandi finestre presenti
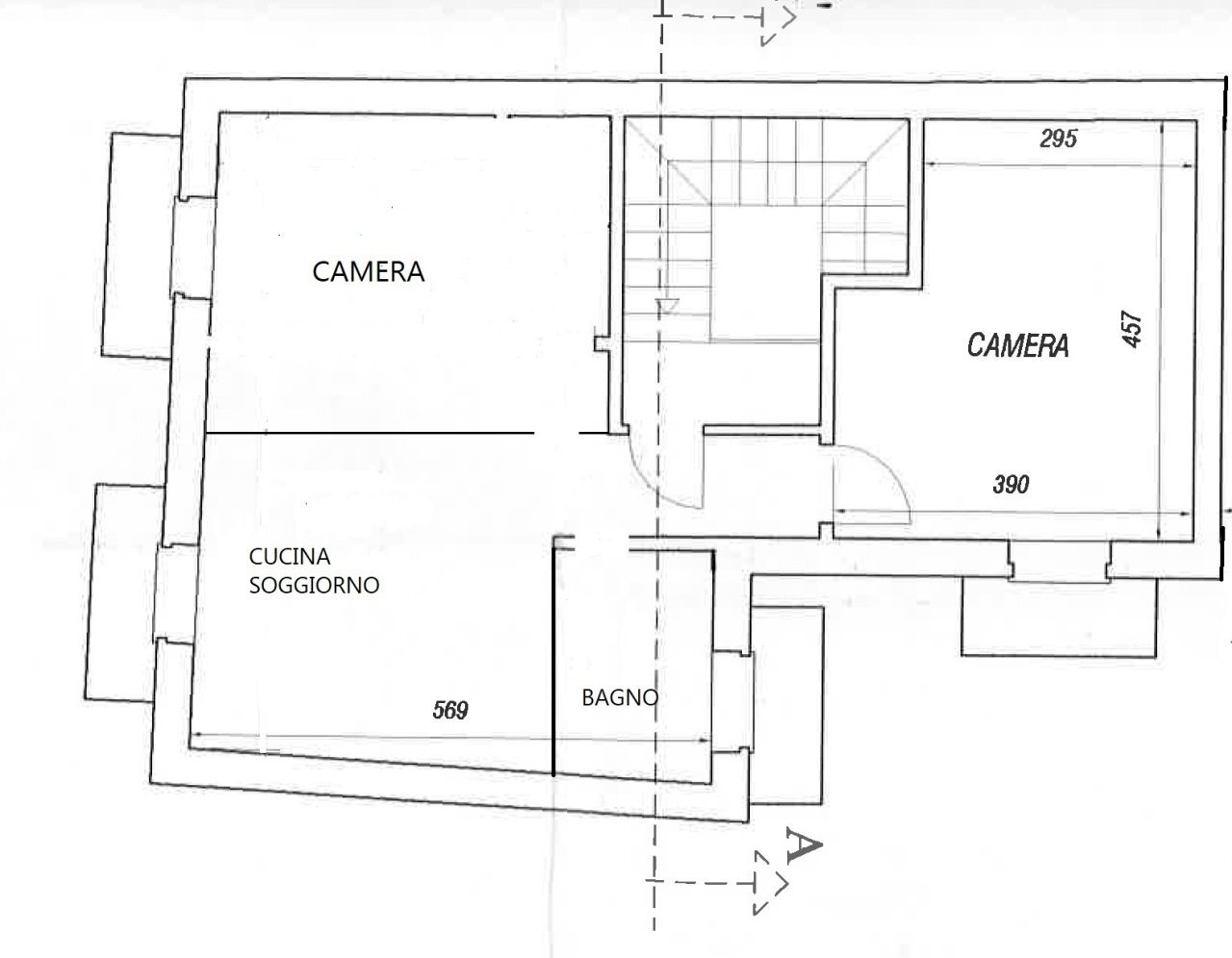
Al primo piano, la zona giorno è un grande openspace, ideale per un ambiente accogliente e sociale. Due camere da letto spaziose garantiscono comfort e adattabilità, mentre i servizi completano il piano in modo pratico.
La soffitta al piano secondo rappresenta un ulteriore spazio da sfruttare secondo le proprie necessità, ideale per ripostigli o ambienti aggiuntivi.
Dalla corte comune si raggiunge il garage doppio, la tavernetta con annesso bagno lavanderia e un locale deposito, perfetto per gestire ogni bisogno di spazio.
Una scala esterna conduce alla suggestiva cantina. Completa la proprietà un terreno privato, un angolo di tranquillità dove rilassarsi e godere della propria privacy.
Questa soluzione offre un'ottima opportunità per realizzare la propria idea di casa, con la possibilità di scegliere finiture, materiali e dettagli in linea con il proprio stile.
L’agenzia immobiliare Dotta si distingue da anni nel panorama territoriale grazie all’estrema serietà e competenza dello staff. È parte della nostra missione accompagnare il cliente nel processo di valutazione e scelta dell’immobile più confacente alle proprie aspettative e necessità.
Contattaci subito per visionare insieme questa casa nelle Langhe. Saremo lieti di accompagnarti alla proprietà senza alcun impegno, con cortesia e professionalità.
www.dottaimmobiliare.it +39 0173742526
Situata in una zona tranquilla e ben collegata questa soluzione offre la libertà di progettare gli interni su misura, scegliendo la disposizione degli ambienti e i materiali di finitura secondo il proprio gusto e le proprie esigenze.
L'immobile offre ampie dimensioni e una distribuzione funzionale, sviluppandosi su più piani con molta luce naturale grazie alle grandi finestre presenti
Al primo piano, la zona giorno è un grande openspace, ideale per un ambiente accogliente e sociale. Due camere da letto spaziose garantiscono comfort e adattabilità, mentre i servizi completano il piano in modo pratico.
La soffitta al piano secondo rappresenta un ulteriore spazio da sfruttare secondo le proprie necessità, ideale per ripostigli o ambienti aggiuntivi.
Dalla corte comune si raggiunge il garage doppio, la tavernetta con annesso bagno lavanderia e un locale deposito, perfetto per gestire ogni bisogno di spazio.
Una scala esterna conduce alla suggestiva cantina. Completa la proprietà un terreno privato, un angolo di tranquillità dove rilassarsi e godere della propria privacy.
Questa soluzione offre un'ottima opportunità per realizzare la propria idea di casa, con la possibilità di scegliere finiture, materiali e dettagli in linea con il proprio stile.
L’agenzia immobiliare Dotta si distingue da anni nel panorama territoriale grazie all’estrema serietà e competenza dello staff. È parte della nostra missione accompagnare il cliente nel processo di valutazione e scelta dell’immobile più confacente alle proprie aspettative e necessità.
Contattaci subito per visionare insieme questa casa nelle Langhe. Saremo lieti di accompagnarti alla proprietà senza alcun impegno, con cortesia e professionalità.
www.dottaimmobiliare.it +39 0173742526
Main data
| Reference | D708a25 |
| Ad date | 03/02/2025 |
| Contract | Sale |
| Typology | Portion of a house |
| Surface | 175 m2 |
| Locals | 5 (2 bedrooms, 3 other), 1 bathroom |
| Plan | 4 totals |
| Number of balconies | 1 |
Costs
| Price | Private negotiation |
Energy efficiency
| Year built | 2025 |
| Energy rating | In the calculation phase |
Floor plans
Address and map
Via Cristoforo Colombo 63, Narzole
Advertiser
Call
CONTACT


