Terraced Villa Via Bricco San Martino 44, Lequio Tanaro
€ 140.000Semindipendente - Villa a schiera a Lequio Tanaro
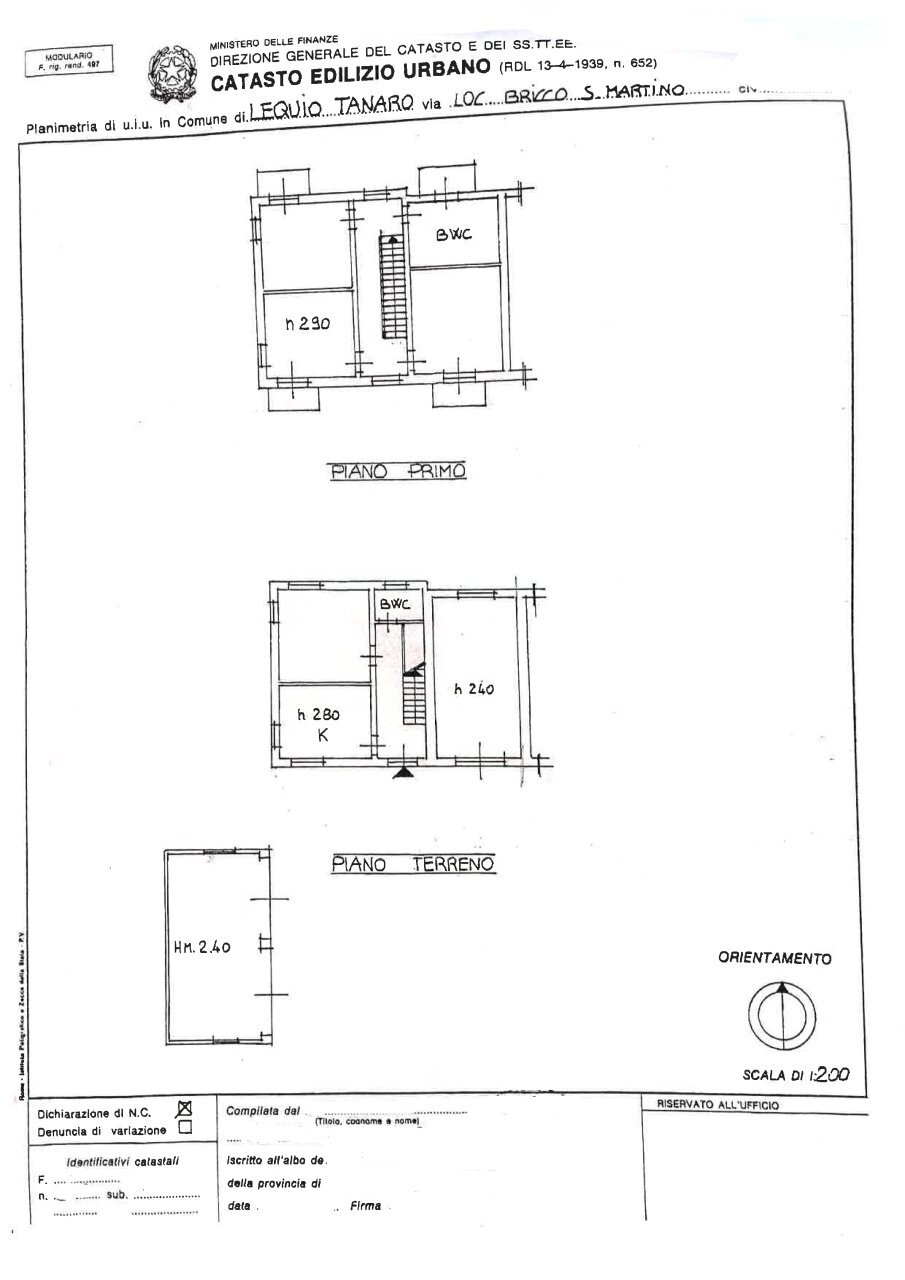
Casa indipendente su tre lati con giardino. In posizione tranquilla, ma comoda ai servizi, a pochi chilometri dal centro di Lequio Tanaro e a breve distanza da Fossano, casa indipendente su tre lati con giardino. L’abitazione, di circa 200 mq, si sviluppa su due livelli: al piano terra troviamo un ampio soggiorno con cucina a vista, un bagno, la centrale termica e una spaziosa taverna ideale per momenti conviviali. Una scala interna conduce al primo piano, dove si distribuiscono tre camere da letto ed un secondo bagno. La proprietà gode di accesso indipendente e si apre su una corte privata sulla quale insiste un ampio porticato ad uso autorimessa, perfetto per più veicoli o come spazio coperto polifunzionale. Completano la proprietà un orto di generose dimensioni ed un giardino sul retro, che regalano privacy e la possibilità di vivere appieno la tranquillità della campagna circostante. La casa si presenta abitabile da subito, necessitando solo di piccole migliorie per essere valorizzata al meglio. Una soluzione ideale per chi desidera vivere nel verde senza rinunciare alla comodità dei servizi. L’agenzia immobiliare Dotta si distingue da anni nel panorama territoriale grazie all’estrema serietà e competenza dello staff. È parte della nostra missione accompagnare il cliente nel processo di valutazione e scelta dell’immobile più confacente alle proprie aspettative e necessità. Contattaci subito per visionare insieme questa casa nelle Langhe. Saremo lieti di accompagnarti alla proprietà senza alcun impegno, con cortesia e professionalità. www.dottaimmobiliare.it +39 0173742526
Main data
| Reference | D743.25 |
| Ad date | 17/09/2025 |
| Contract | Sale |
| Typology | Terraced Villa |
| Surface | 230 m2 |
| Locals | more than 5 (3 bedrooms, 4 other), 2 bathrooms |
| Plan | 2 totals |
| Number of balconies | 1 |
Costs
| Price | 140.000 € |
| Price per m2 | 609 €/m2 |
Energy efficiency
| Year built | 1977 |
| Energy rating | F |
Floor plans
Address and map
Via Bricco San Martino 44, Lequio Tanaro
Mortgage calculation
Selling price:
Advance
20,00
Mortgage
80,00
Rate: -+
Payment: 400 per month
The results are an indicative estimate based on the data entered and do not constitute a financial offer.
Advertiser
Call
CONTACT


