Independent house Strada Comunale Belvedere Castellone 22, Anagni
€ 55.000Indipendente - Cemento armato a Anagni
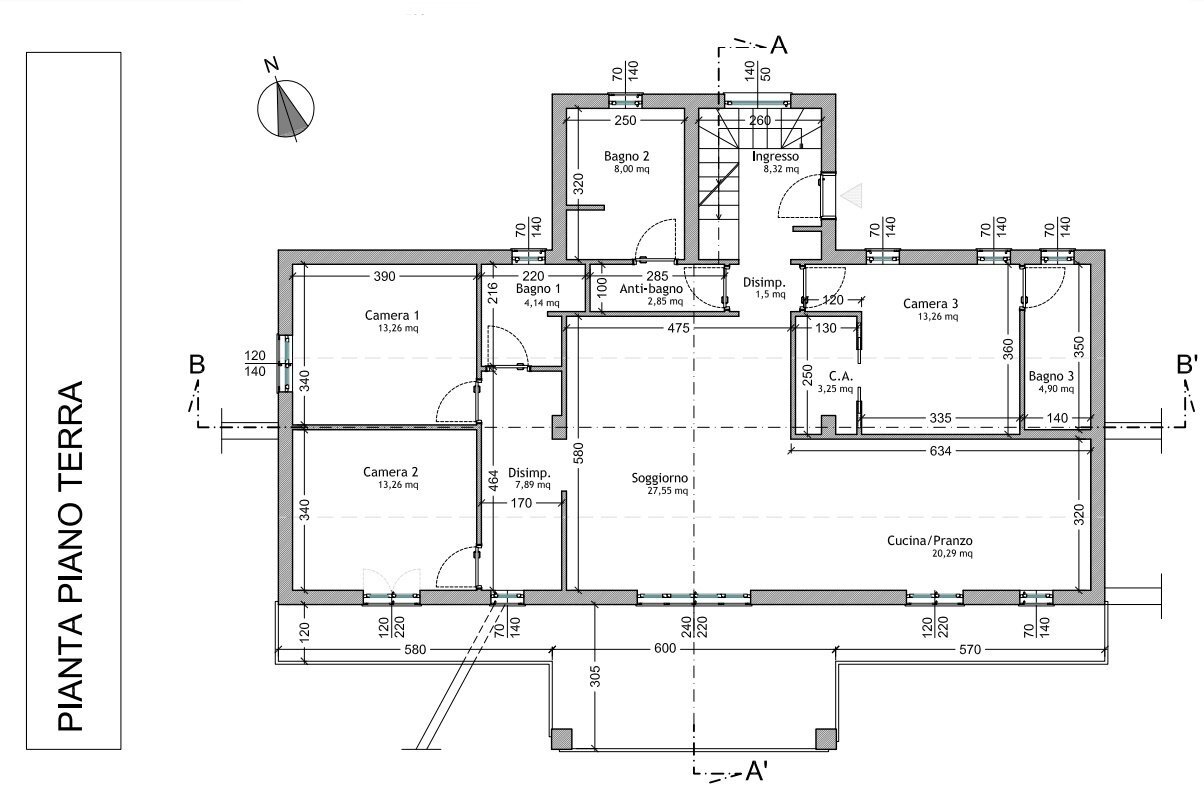
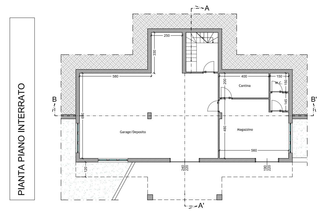
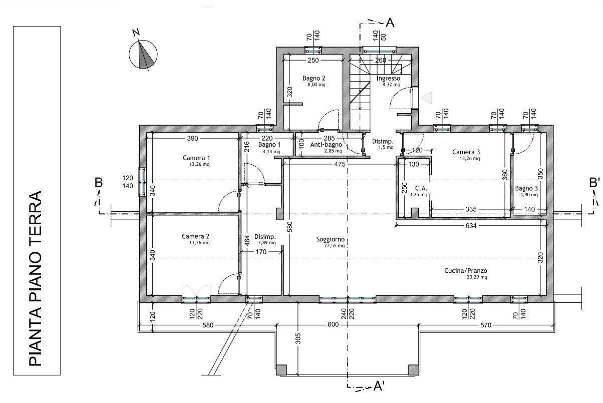
POSIZIONE A soli 2 chilometri dal centro di Anagni, all'incrocio tra Strada Comunale Castellone e Via Vignola. In posizione ben esposta e facilmente raggiungibile, in quanto direttamente su strada comunale. DESCRIZIONE Cemento armato di soluzione indipendente/villa (da ultimare), di nuova generazione - anno di realizzazione 2015 - con regolare permesso di costruire, rilasciato per realizzare una soluzione abitativa di ampia metratura. La proprietà, di c.a. 380 mq complessivi, oltre portico, viene venduta allo stato di fatto. La soluzione, nel suo totale volume autorizzato, si sviluppa su tre livelli: piano seminterrato (garage e locali tecnici a servizio) di c.a. 170 mq, già realizzato; piano abitativo di c.a. 140 mq, oltre portico, da realizzare; soffitta lavatoio-stenditoio, di c.a. 70 mq. L'attuale progetto prevede la suddivisione interna nel seguente modo: ampia cucina-soggiorno, studio, grande soggiorno con portico, tre grandi camere e due bagni. Completa la proprietà terreno di c.a. 1.800 mq complessivi. SINTESI Terreno 1.500 mq c.a. + 300 mq c.a. Piano seminterrato 170 mq c.a. Parte abitativa 140 mq c.a. + portico di c.a. 30 mq Piano sottotetto 70 mq c.a. STATO E FINITURE Proprietà con regolare permesso di costruire (oneri pagati), da ultimare. Attualmente sono stati effettuati interventi di sbancamento, inoltre è stato realizzato il piano seminterrato in cemento armato, con muro di paratia e contenimento in cemento armato. Per volumetria e stato, l'immobile risulta perfetto per essere personalizzato, al fine di soddisfare le proprie esigenze abitative. Ubicato in area non isolata, servita da metano, elettricità e acqua diretta. SPAZI ESTERNI La proprietà è posta sul lato di monte del lotto, per consentire di ottimizzare al meglio il residuo giardino-corte (lato valle), a servizio dell'unità abitativa, che di fatto consente di avere uno spazio esterno di facile gestione. UTILIZZO E POTENZIALITA' Proprietà ideale per chi ha le potenzialità ed il desiderio di voler realizzare una soluzione abitativa indipendente, in base ai propri gusti e necessità. * Le presenti informazioni non costituiscono elemento contrattuale, dovranno essere verificate in ogni caso. Per tutte le soluzioni in vendita, potete visitare il nostro sito www.gruppoempireimmobiliare.it
Main data
| Reference | 201-384 |
| Ad date | 19/09/2022 |
| Contract | Sale |
| Typology | Independent house |
| Surface | 380 m2 |
| Locals | 3 (3 bedrooms), 2 bathrooms |
| Plan | 3 totals |
Costs
| Price | 55.000 € |
| Price per m2 | 145 €/m2 |
Energy efficiency
| Energy rating | Property exempt from energy certification |
Floor plans
Address and map
Strada Comunale Belvedere Castellone 22, Anagni
Mortgage calculation
Selling price:
Advance
20,00
Mortgage
80,00
Rate: -+
Payment: 157 per month
The results are an indicative estimate based on the data entered and do not constitute a financial offer.
Advertiser
Call
CONTACT


