Commercial Premises Via Pietro Bembo 2, Roma
€ 148.000Locale commerciale a Roma
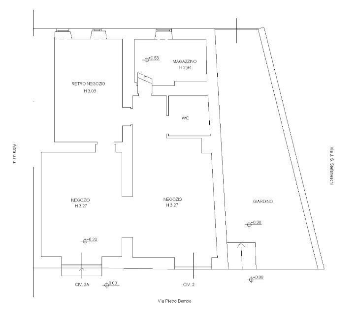
BOCCEA TORREVECCHIA LOCALE CANNA FUMARIA e precisamente in Via Pietro Bembo proponiamo la vendita di un locale commerciale con annessa corte esterna 40mq composto internamente da due vani negozio fronte strada, cucina con canna fumaria, servizio per disabili e magazzino. Euro 148.000. Adatto a tutte le attività, ma soprattutto ad attività di somministrazione. Ottima redditività soprattutto in caso di acquisto per investimento. Lavori ristrutturazione palazzina già deliberati
Main data
| Reference | Locale |
| Ad date | 20/07/2023 |
| Contract | Sale |
| Typology | Commercial Premises |
| Surface | 80 m2 |
| Locals | 4 (4 other), 1 bathroom |
| Plan | 1 totals |
Costs
| Price | 148.000 € |
| Price per m2 | 1.850 €/m2 |
Energy efficiency
| Energy rating | G |
Address and map
Via Pietro Bembo 2, Roma
Mortgage calculation
Selling price:
Advance
20,00
Mortgage
80,00
Rate: -+
Payment: 423 per month
The results are an indicative estimate based on the data entered and do not constitute a financial offer.
Advertiser
Call
CONTACT

