Villa Fordongianus
€ 100.000Indipendente - Singola a Fordongianus
Fordongianus, nel cuore di uno dei borghi più affascinanti e ricchi di storia della Sardegna, proponiamo una Casa Indipendente con Cortile privato e Box auto.
La proprietà si trova in una zona tranquilla e riservata, a pochi passi dalle celebri terme romane e dai principali siti archeologici del paese, e rappresenta una rara occasione per chi cerca autenticità e potenziale.
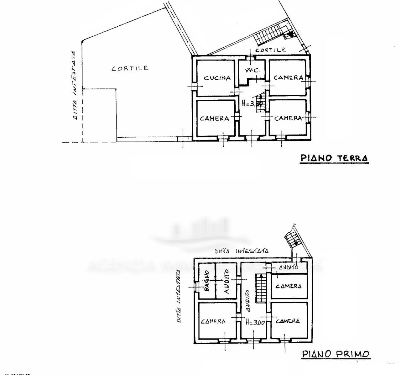
La casa si sviluppa su due livelli. Al piano terra si apre una spaziosa zona giorno composta da salotto, soggiorno e cucina con camino, un ambiente accogliente perfetto per momenti di convivialità. Sullo stesso piano si trovano anche un bagno e una camera da letto. Dalla cucina si accede direttamente al cortile interno, un ambiente pavimentato e riservato, ideale per creare una zona relax o uno spazio barbecue da vivere durante la bella stagione. A completare la comodità della proprietà, un box auto coperto con accesso diretto dalla via principale.
Una scala interna conduce al piano superiore dove si sviluppa la zona notte, composta da tre ampie camere da letto, una camera singola e un secondo bagno.
L’immobile necessita di lavori di ristrutturazione, ma il prezzo competitivo lo rende una proposta estremamente interessante, sia per chi desidera personalizzare la propria casa ideale, sia per chi è alla ricerca di un’opportunità di investimento. Le dimensioni, la disposizione degli spazi e la presenza del cortile lo rendono infatti perfetto anche per la realizzazione di una struttura ricettiva, come un B&B o una casa vacanze, in una località che sta riscoprendo una forte attrattiva turistica grazie alla sua storia millenaria, alle terme e al fascino intramontabile della Sardegna interna.
Agenzia Immobiliare Sarda è una società di intermediazione immobiliare regolarmente registrata® con tutte le relative licenze ed autorizzazioni. Tutto il materiale presentato è destinato esclusivamente a scopo informativo. Sebbene questo materiale sia ritenuto corretto, può essere soggetto a errori, omissioni ovvero modifiche. Tutte le informazioni sulla proprietà, inclusi, a titolo esemplificativo, metri quadrati, numero di camere, numero di camere da letto, zona e quartiere, nelle proprietà o informazioni mostrate devono essere verificate dal proprio avvocato, architetto, geometra o esperto di fiducia.
La visione delle unità immobiliari è soggetta a previa sottoscrizione del foglio di visita. Tale dichiarazione è utile ai fini della conoscibilità dell’immobile grazie all’agenzia immobiliare.
La proprietà si trova in una zona tranquilla e riservata, a pochi passi dalle celebri terme romane e dai principali siti archeologici del paese, e rappresenta una rara occasione per chi cerca autenticità e potenziale.
La casa si sviluppa su due livelli. Al piano terra si apre una spaziosa zona giorno composta da salotto, soggiorno e cucina con camino, un ambiente accogliente perfetto per momenti di convivialità. Sullo stesso piano si trovano anche un bagno e una camera da letto. Dalla cucina si accede direttamente al cortile interno, un ambiente pavimentato e riservato, ideale per creare una zona relax o uno spazio barbecue da vivere durante la bella stagione. A completare la comodità della proprietà, un box auto coperto con accesso diretto dalla via principale.
Una scala interna conduce al piano superiore dove si sviluppa la zona notte, composta da tre ampie camere da letto, una camera singola e un secondo bagno.
L’immobile necessita di lavori di ristrutturazione, ma il prezzo competitivo lo rende una proposta estremamente interessante, sia per chi desidera personalizzare la propria casa ideale, sia per chi è alla ricerca di un’opportunità di investimento. Le dimensioni, la disposizione degli spazi e la presenza del cortile lo rendono infatti perfetto anche per la realizzazione di una struttura ricettiva, come un B&B o una casa vacanze, in una località che sta riscoprendo una forte attrattiva turistica grazie alla sua storia millenaria, alle terme e al fascino intramontabile della Sardegna interna.
Agenzia Immobiliare Sarda è una società di intermediazione immobiliare regolarmente registrata® con tutte le relative licenze ed autorizzazioni. Tutto il materiale presentato è destinato esclusivamente a scopo informativo. Sebbene questo materiale sia ritenuto corretto, può essere soggetto a errori, omissioni ovvero modifiche. Tutte le informazioni sulla proprietà, inclusi, a titolo esemplificativo, metri quadrati, numero di camere, numero di camere da letto, zona e quartiere, nelle proprietà o informazioni mostrate devono essere verificate dal proprio avvocato, architetto, geometra o esperto di fiducia.
La visione delle unità immobiliari è soggetta a previa sottoscrizione del foglio di visita. Tale dichiarazione è utile ai fini della conoscibilità dell’immobile grazie all’agenzia immobiliare.
Main data
| Reference | SAR560 |
| Ad date | 24/04/2025 |
| Contract | Sale |
| Typology | Villa |
| Surface | 204 m2 |
| Locals | more than 5 (5 bedrooms, 4 other), 2 bathrooms |
| Plan | 2 totals |
| Number of balconies | 1 |
| Furniture | Complete |
Costs
| Price | 100.000 € |
| Price per m2 | 490 €/m2 |
Energy efficiency
| Year built | 1960 |
| Energy rating | G |
Floor plans
Address and map
Fordongianus
Ad without map,
try asking the advertiser for the position
try asking the advertiser for the position
Mortgage calculation
Selling price:
Advance
20,00
Mortgage
80,00
Rate: -+
Payment: 286 per month
The results are an indicative estimate based on the data entered and do not constitute a financial offer.
Advertiser
Call
CONTACT


