Villa Via Campoleone 37B, Ariccia
€ 298.000Villa - Bifamiliare a Ariccia
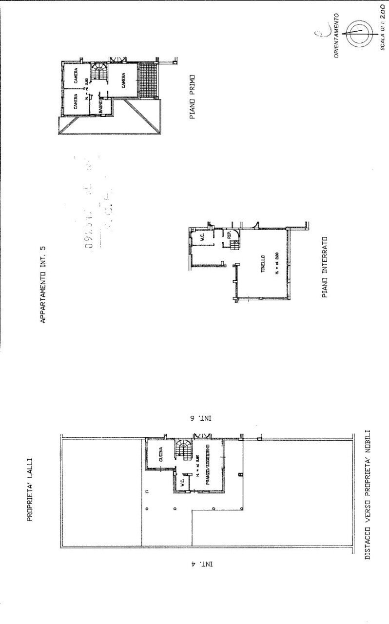
In piccolo Residence di sole 6 unità abitative, proponiamo in vendita una splendida porzione di bifamiliare di mq 180, situata ad Ariccia (RM), in una zona residenziale tranquilla, immersa nel verde e a pochi passi dai principali servizi. La proprietà, disposta su tre livelli, offre ambienti spaziosi e ben organizzati. Al piano terra troviamo un accogliente soggiorno e una cucina abitabile entrambe con uscita verso il giardino, dotato di ampi portici ed un bagno di servizio. Il primo piano ospita tre comode camere da letto di cui una con ampio balcone, e un bagno con vasca. Il piano seminterrato è composto da un'ampia sala hobby in parte fuori terra, con ampie finestre a giorno e con ingresso indipendente, un bagno, un pratico ripostiglio, una camera di servizio ed un camino. La proprietà dispone infine, di uno spazioso box auto di mq 45, accessibile tramite un cancello elettrico indipendente, che rappresenta un elemento di praticità e sicurezza. La posizione dell'immobile consente di raggiungere comodamente i servizi di bene primario e le vie limitrofe Nettunense ed Ardeatina, oltre all'adiacente nuovo Ospedale dei Castelli.
Main data
| Reference | 683 |
| Ad date | 06/03/2025 |
| Contract | Sale |
| Typology | Villa |
| Surface | 180 m2 |
| Locals | more than 5 (3 bedrooms, 5 other), 3 bathrooms |
| Plan | 3 totals |
| Number of terraces | 1 |
| Number of balconies | 1 |
Costs
| Price | 298.000 € |
| Price per m2 | 1.656 €/m2 |
Energy efficiency
| Year built | 1999 |
| Energy rating | F |
Floor plans
Address and map
Via Campoleone 37B, Ariccia
Mortgage calculation
Selling price:
Advance
20,00
Mortgage
80,00
Rate: -+
Payment: 852 per month
The results are an indicative estimate based on the data entered and do not constitute a financial offer.
Advertiser
Call
CONTACT


