Commercial Premises Via San Vito di Sotto, San Casciano in Val di Pesa
€ 890.000Capannone / Fondo - Commerciale a Calzaiolo, San Casciano in Val di Pesa
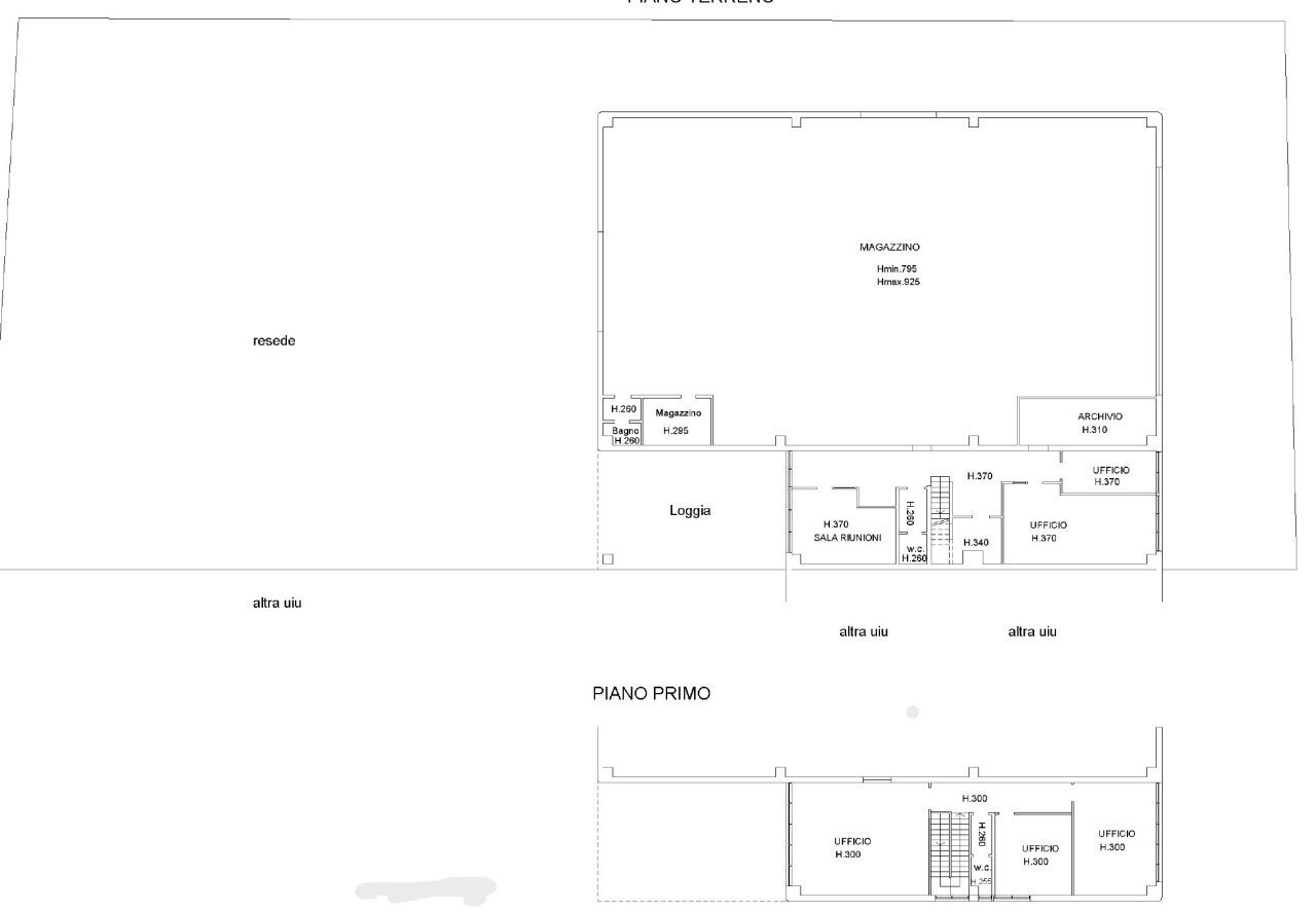
a25157 - SAN CASCIANO VAL DI PESA/VIA DI SAN VITO DI SOTTO: All'interno della zona industriale, nei pressi dell'uscita del raccordo Firenze - Siena ed immerso nel verde, IMMOBILIARE BELVEDERE propone in vendita ampio capannone, categoria catastale D/7, di 750 mq ca composto da: ingresso, ampio magazzino di 500 mq ca con altezza massima di 9 m, vani uffici disposti su due livelli con tre servizi oltre a pratico piazzale su tre lati. Il fabbricato è stato costruito completamente nel 2017, gode di quadrupla esposizione con ottimi affacci direttamente sulle colline circostanti e dotato di circa 10 posti auto, due ingressi carrabili per bilici ed aria condizionata. Termosingolo classe energetica A3
Main data
| Reference | a25157 |
| Ad date | 22/04/2025 |
| Contract | Sale |
| Typology | Commercial Premises |
| Surface | 750 m2 |
| Locals | more than 5 (7 other), 3 bathrooms |
| Plan | 2 totals |
| Number of parking spaces | 1 |
Costs
| Price | 890.000 € |
| Price per m2 | 1.187 €/m2 |
Energy efficiency
| Year built | 2017 |
| Energy rating | A+ |
| Energy Performance Index (IPE) | - |
Floor plans
Address and map
Via San Vito di Sotto, San Casciano in Val di Pesa
Mortgage calculation
Selling price:
Advance
20,00
Mortgage
80,00
Rate: -+
Payment: 2.545 per month
The results are an indicative estimate based on the data entered and do not constitute a financial offer.
Advertiser
Call
CONTACT

