Apartment Via Gaspare Spontini, Firenze
€ 370.000Appartamento a San Jacopino, Firenze
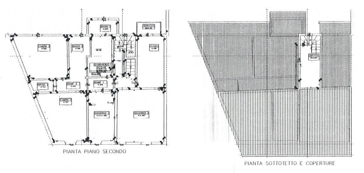
a25160 - SAN JACOPINO/VIA GASPARE SPONTINI: In piacevole contesto residenziale nei pressi dei principali servizi proponiamo in vendita ampio e luminoso appartamento (115 mq c.a.) situato al secondo ed ultimo piano composto da: ingresso, soggiorno, cucina abitabile, due camere da letto matrimoniali, una camera da letto singola disposta su due livelli con doppi servizi finestrati oltre a pratico balcone. L'immobile si presenta in ottime condizioni generali, gode di doppia esposizione con piacevoli affacci ed è dotato di doppie finestre, pavimenti in cotto e in parquet, soffitti con travi a vista e pianelle, stufa a legna e camino funzionante. Termosingolo classe energetica G.
Main data
| Reference | a25160 |
| Ad date | 23/04/2025 |
| Contract | Sale |
| Typology | Apartment |
| Surface | 115 m2 |
| Locals | 5 (3 bedrooms, 2 other), 2 bathrooms |
| Plan | 1 totals |
| Number of balconies | 1 |
Costs
| Price | 370.000 € |
| Price per m2 | 3.217 €/m2 |
Energy efficiency
| Year built | 1970 |
| Energy rating | G |
Floor plans
Address and map
Via Gaspare Spontini, Firenze
Mortgage calculation
Selling price:
Advance
20,00
Mortgage
80,00
Rate: -+
Payment: 1.058 per month
The results are an indicative estimate based on the data entered and do not constitute a financial offer.
Advertiser
Call
CONTACT

