
To see more images,
try asking the advertiser
try asking the advertiser
Box VIA PRIVATA COLLEMAR, Alassio
€ 35.000Garage / Posto Auto a Alassio
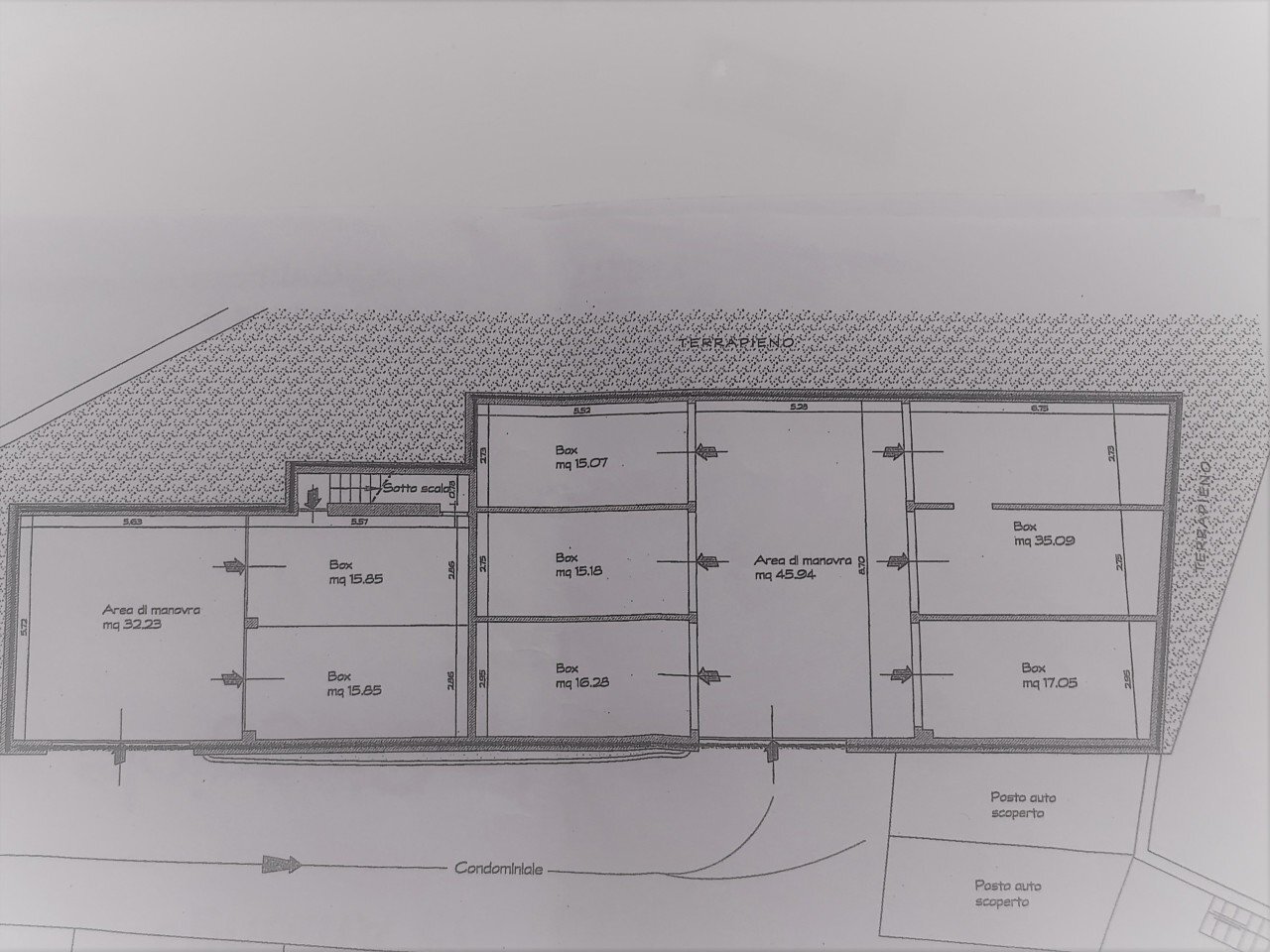
Alassio . In zona residenziale, nel complesso Le Giuggiole: proponiamo Box singoli e doppi. A partire da € 35.000. Ottimo investimento. Box N.2 € 41.000 Box N 3 € 47.000 Box N 4 € 35.000 Box N.5 €. 40.000 Box N.6 € 63.000
Main data
| Reference | BOXCOMPLESSOLEGIUGGIOLE |
| Ad date | 01/09/2022 |
| Contract | Sale |
| Typology | Box |
| Surface | 16 m2 |
Costs
| Price | 35.000 € |
| Price per m2 | 2.188 €/m2 |
Energy efficiency
| Energy rating | In the calculation phase |
Address and map
VIA PRIVATA COLLEMAR, Alassio
Mortgage calculation
Selling price:
Advance
20,00
Mortgage
80,00
Rate: -+
Payment: 100 per month
The results are an indicative estimate based on the data entered and do not constitute a financial offer.
Advertiser

Argomenti Immobiliari
Via Boselli 1, Alassio
Show Phone
Show Mobile
Call
CONTACT