One-room apartment Via Eraldo Fico 100, Sestri Levante
€ 225.000Appartamento - Monolocale a Sestri Levante
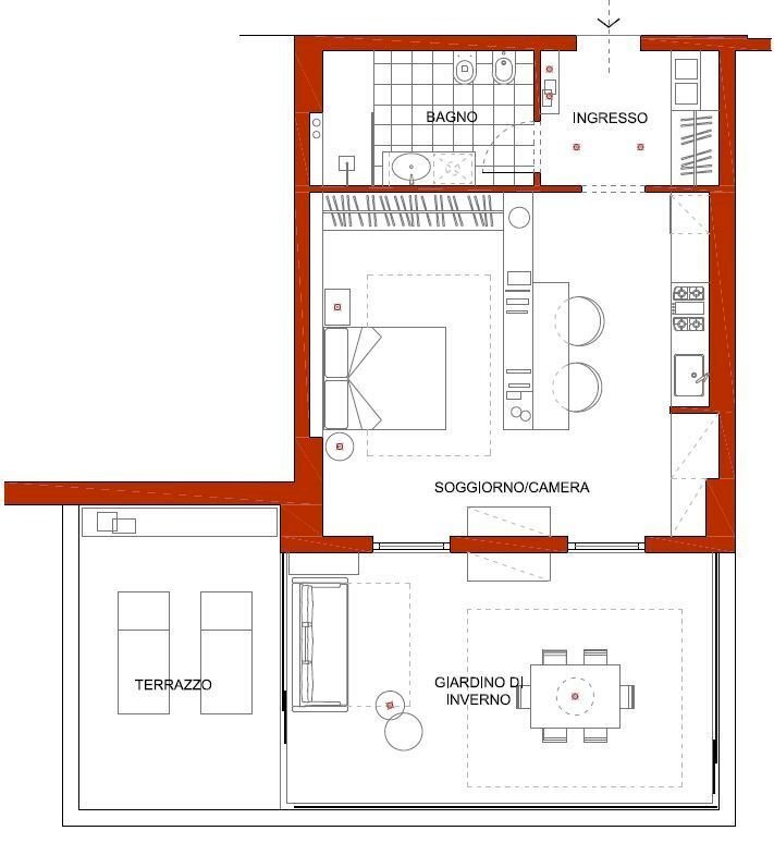
(Rif. 24) Sestri Levante – Via Fico: comfort, praticità e mare a due passi! Cerchi una casa che unisca posizione centrale, comodità e relax a pochi passi dal mare? A soli 350 metri dalle spiagge e 100 metri dalla stazione ferroviaria, questo appartamento rappresenta una soluzione ideale per chi ama muoversi con facilità, senza rinunciare alla tranquillità. Proponiamo in esclusiva un ampio monolocale di mq 43 commerciali, situato al secondo piano con ascensore, composto da ingresso/disimpegno, soggiorno con angolo cottura e bagno. Il vero punto di forza? Un grande terrazzo coperto, avvolto da vetrate panoramiche VePa su tre lati, che regalano luce, silenzio e uno spazio vivibile tutto l’anno, grazie al loro isolamento termico e acustico. L’appartamento è subito abitabile, perfetto come casa vacanze o come investimento pronto all’uso. Riscaldamento centralizzato. Completa la proprietà un prezioso box auto di 17 mq, dotato di acqua e luce — un vantaggio raro e fondamentale in una zona così centrale! Un’occasione unica per vivere o investire nel cuore di Sestri Levante, dove ogni comodità è davvero a portata di mano. (Nella galleria delle immagini, sono presenti rendering progettati per presentare la parte con le vetrate panoramiche) ______________________________________________________________________ Per maggiori dettagli o per prenotare una visita, contatta l'Agente Immobiliare incaricato: Samuel Arbasetti tel. 348/0081100 [email protected]
Main data
| Reference | 24 |
| Ad date | 06/10/2025 |
| Contract | Sale |
| Typology | Apartment |
| Surface | 43 m2 |
| Locals | 1 (1 other), 1 bathroom |
| Plan | 1 totals |
| Number of terraces | 1 |
Costs
| Price | 225.000 € |
| Price per m2 | 5.233 €/m2 |
Energy efficiency
| Energy rating | G |
Floor plans
Address and map
Via Eraldo Fico 100, Sestri Levante
Mortgage calculation
Selling price:
Advance
20,00
Mortgage
80,00
Rate: -+
Payment: 643 per month
The results are an indicative estimate based on the data entered and do not constitute a financial offer.
Advertiser

Immobiliare Arbasetti
Corso C. Colombo 84, Sestri Levante
Show Phone
Show Mobile
Call
CONTACT

