Gym and Sports Facilities at auction Via Girgenti 3, Alessandria
€ 180.352Palestra a Alessandria
Immobile ad uso palestra. - Il Prezzo visualizzato è la Base d'Asta in quanto l’immobile è oggetto di esecuzione immobiliare venduto tramite Asta Giudiziaria. - L'immobile aggiudicato, viene venduto libero e sgombro da persone cose ed ipoteche nello stato di fatto e di diritto in cui si trova. - Non rappresentiamo il Tribunale, ma lavoriamo nell'esclusivo interesse del potenziale acquirente per garantire un acquisto sicuro. - I consulenti di ASTE ITALIA ti assisteranno in tutte le attività dell'iter giudiziario dalla visita dell'immobile fino alla consegna chiavi. - Contatta il nostro Servizio Clienti , i nostri operatori sono a disposizione per chiarire i molteplici dubbi per partecipare alle ASTE.
Main data
| Reference | AL149/24LU-2404-26-1000 |
| Ad date | 13/12/2024 |
| Contract | Sale |
| Typology | Gym and Sports Facilities |
| Surface | 1516 m2 |
| Locals | more than 5 (10 other), 4 bathrooms |
| Plan | 3 totals |
Costs
| Minimum bid | € 180.352 |
| Price per m2 | 119 €/m2 |
Energy efficiency
| Energy rating | G |
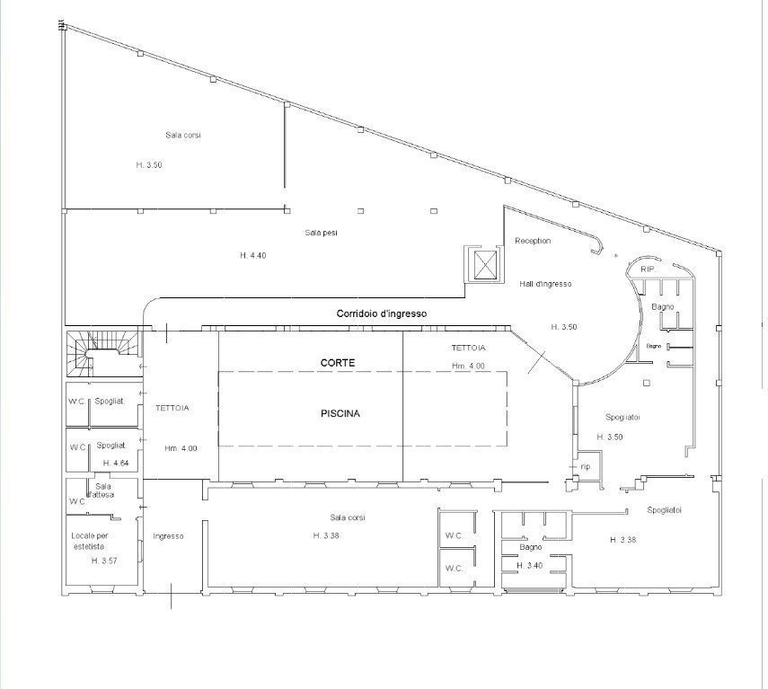
Floor plans
Address and map
Via Girgenti 3, Alessandria
Mortgage calculation
Selling price:
Advance
20,00
Mortgage
80,00
Rate: -+
Payment: 516 per month
The results are an indicative estimate based on the data entered and do not constitute a financial offer.
Advertiser

DOMY ONLINE S.R.L.
Via San Lorenzo 5 Int. 41, Genova
Show Phone
Show Mobile
Call
CONTACT

