Townhouse at auction Piazza Vittorio Veneto 1, Altare
€ 21.785Semindipendente - Terratetto a Altare
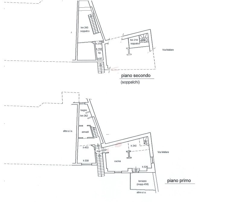
Proprietà per la quota di 1000/1000 di appartamento, box e cantina, della superficie commerciale di mq 140,10, articolato su tre piani. Il piano interrato, cantina, è composto da un unico vano adibito a locale sgombero; il piano terra, box, è composto da un unico ampio locale adibito a box e da un piccolo ripostiglio; il piano primo, abitativo, è costituito dall’appartamento composto da ingresso, soggiorno, cucina, camera, disimpegno, cabina armadio, bagno e terrazzo.
- Il Prezzo visualizzato è la Base d'Asta in quanto l’immobile è oggetto di esecuzione immobiliare venduto tramite Asta Giudiziaria.
- L'immobile aggiudicato, viene venduto libero e sgombro da persone cose ed ipoteche nello stato di fatto e di diritto in cui si trova.
- Non rappresentiamo il Tribunale, ma lavoriamo nell'esclusivo interesse del potenziale acquirente per garantire un acquisto sicuro.
- I consulenti di ASTE ITALIA ti assisteranno in tutte le attività dell'iter giudiziario dalla visita dell'immobile fino alla consegna chiavi.
- Contatta il nostro Servizio Clienti , i nostri operatori sono a disposizione per chiarire i molteplici dubbi per partecipare alle ASTE.
- Il Prezzo visualizzato è la Base d'Asta in quanto l’immobile è oggetto di esecuzione immobiliare venduto tramite Asta Giudiziaria.
- L'immobile aggiudicato, viene venduto libero e sgombro da persone cose ed ipoteche nello stato di fatto e di diritto in cui si trova.
- Non rappresentiamo il Tribunale, ma lavoriamo nell'esclusivo interesse del potenziale acquirente per garantire un acquisto sicuro.
- I consulenti di ASTE ITALIA ti assisteranno in tutte le attività dell'iter giudiziario dalla visita dell'immobile fino alla consegna chiavi.
- Contatta il nostro Servizio Clienti , i nostri operatori sono a disposizione per chiarire i molteplici dubbi per partecipare alle ASTE.
Main data
| Reference | SV7/25LU-2306-26-1000 |
| Ad date | 04/08/2025 |
| Contract | Sale |
| Typology | Townhouse |
| Surface | 140 m2 |
| Locals | 5 (1 bedroom, 4 other), 1 bathroom |
| Plan | 3 totals |
| Number of terraces | 1 |
Costs
| Minimum bid | € 21.785 |
| Price per m2 | 156 €/m2 |
Energy efficiency
| Energy rating | G |
Floor plans
Address and map
Piazza Vittorio Veneto 1, Altare
Mortgage calculation
Selling price:
Advance
20,00
Mortgage
80,00
Rate: -+
Payment: 62 per month
The results are an indicative estimate based on the data entered and do not constitute a financial offer.
Advertiser

DOMY ONLINE S.R.L.
Via San Lorenzo 5 Int. 41, Genova
Show Phone
Show Mobile
Call
CONTACT

