Villa at auction Regione Rollo 117, Albenga
€ 248.079Indipendente - Villa a Albenga
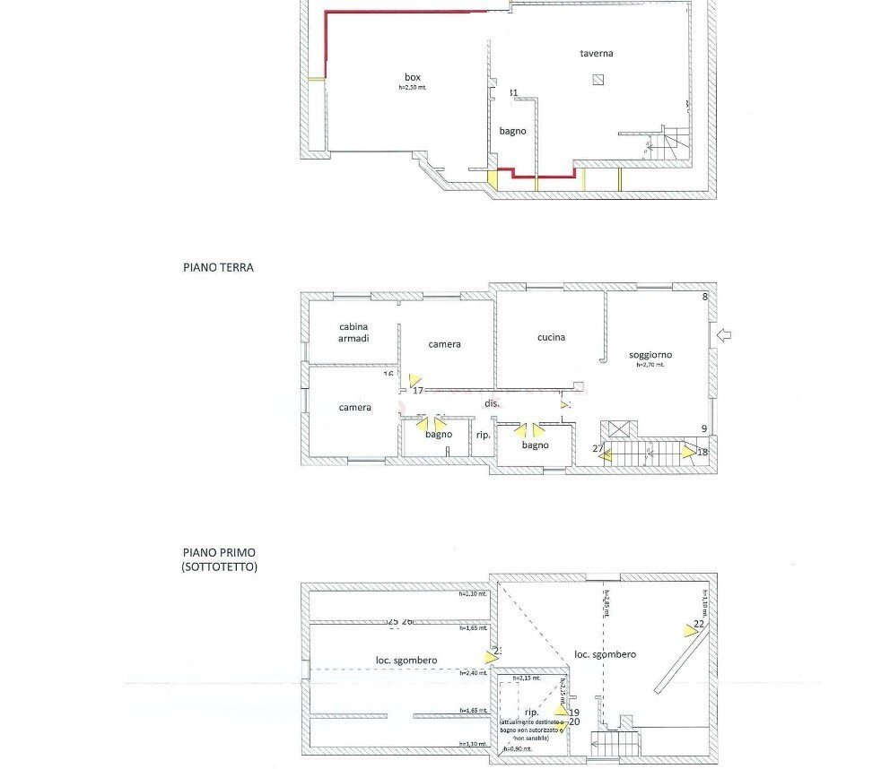
Villa singola (171,54 mq) con box e terreno (2.275 mq) con sovrastante serra (2.121 mq) ad Albenga (SV), Regione Rollo 117, per la piena proprietà. A) Villa singola con box, sup. commerciale di 171,54 mq per la piena proprietà.: Casa indipendente con accesso dal civ. 117 di Regione Rollo su 3 piani: - piano interrato, avente altezza interna pari a mt. 2,50 circa, composta da: taverna, bagno e box (di 20,53 mq commerciali); - piano terra, avente altezza interna pari a mt. 2,70 circa, composta da: soggiorno, cucina, disimpegno, 2bagni, ripostiglio, 2 camere, cabina armadio nonché corte esclusiva su 4 lati; - piano primo, attualmente avente altezze interne variabili da mt. 1,10 a mt. 2,85 circa, composto da 2 locali di sgombero. Pavimenti in listoni di legno e/o piastrelle di ceramica nei locali bagno, pareti tinteggiate e/o parzialmente rivestite in piastrelle di ceramica nei locali adibiti a bagno, porte interne in legno massello, finestre in PVC e vetro camera con grate di protezione in ferro e complete di persiane del tipo “alla genovese” in alluminio anodizzato, porta di ingresso blindata. Riscaldamento autonomo con caldaia a gas metano ubicata esternamente e piastre radianti in alluminio. Impianto idrico ed elettrico realizzati sottotraccia e funzionanti. La scala interna è realizzata in struttura muraria finita con pietra serena. In generale le condizioni di manutenzione e conservazione e i caratteri di finitura interni risultano normali.
- Il Prezzo visualizzato è la Base d'Asta in quanto l’immobile è oggetto di esecuzione immobiliare venduto tramite Asta Giudiziaria.
- L'immobile aggiudicato, viene venduto libero e sgombro da persone cose ed ipoteche nello stato di fatto e di diritto in cui si trova.
- Non rappresentiamo il Tribunale, ma lavoriamo nell'esclusivo interesse del potenziale acquirente per garantire un acquisto sicuro.
- I consulenti di ASTE ITALIA ti assisteranno in tutte le attività dell'iter giudiziario dalla visita dell'immobile fino alla consegna chiavi.
- Contatta il nostro Servizio Clienti , i nostri operatori sono a disposizione per chiarire i molteplici dubbi per partecipare alle ASTE.
- Il Prezzo visualizzato è la Base d'Asta in quanto l’immobile è oggetto di esecuzione immobiliare venduto tramite Asta Giudiziaria.
- L'immobile aggiudicato, viene venduto libero e sgombro da persone cose ed ipoteche nello stato di fatto e di diritto in cui si trova.
- Non rappresentiamo il Tribunale, ma lavoriamo nell'esclusivo interesse del potenziale acquirente per garantire un acquisto sicuro.
- I consulenti di ASTE ITALIA ti assisteranno in tutte le attività dell'iter giudiziario dalla visita dell'immobile fino alla consegna chiavi.
- Contatta il nostro Servizio Clienti , i nostri operatori sono a disposizione per chiarire i molteplici dubbi per partecipare alle ASTE.
Main data
| Reference | SV13/24LU-2105-26-1130 |
| Ad date | 15/09/2025 |
| Contract | Sale |
| Typology | Villa |
| Surface | 172 m2 |
| Locals | more than 5 (2 bedrooms, 4 other), 3 bathrooms |
| Plan | 3 totals |
Costs
| Minimum bid | € 248.079 |
| Price per m2 | 1.442 €/m2 |
Energy efficiency
| Energy rating | G |
Floor plans
Address and map
Regione Rollo 117, Albenga
Mortgage calculation
Selling price:
Advance
20,00
Mortgage
80,00
Rate: -+
Payment: 709 per month
The results are an indicative estimate based on the data entered and do not constitute a financial offer.
Advertiser

DOMY ONLINE S.R.L.
Via San Lorenzo 5 Int. 41, Genova
Show Phone
Show Mobile
Call
CONTACT

