Shed Vezzano Ligure
€ 180.000Capannone / Fondo a Fornola, Vezzano Ligure
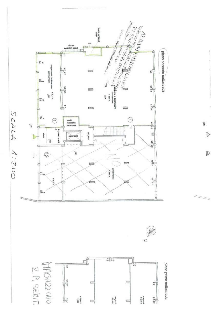
Capannone locale magazzino in vendita, La Spezia - VE318 - In zona di grande transito, strategica per la vicinanza alla Spezia, Vezzano Ligure, Ceparana e Follo, in vendita locale magazzino di mq. totali 260, fruibili a deposito, magazzino, officina meccanica. Le altezze interne sono così differenziate: la prima parte, di ingresso, misura h.5,75. La porzione retrostante h. 2,90. Posti auto esterni
Main data
| Reference | VE318 |
| Ad date | 23/03/2023 |
| Contract | Sale |
| Typology | Shed |
| Surface | 260 m2 |
| Locals | 2 (2 other) |
| Plan | 1 totals |
Costs
| Price | 180.000 € |
| Price per m2 | 692 €/m2 |
Energy efficiency
| Energy rating | Property exempt from energy certification |
Address and map
Vezzano Ligure
Ad without map,
try asking the advertiser for the position
try asking the advertiser for the position
Mortgage calculation
Selling price:
Advance
20,00
Mortgage
80,00
Rate: -+
Payment: 515 per month
The results are an indicative estimate based on the data entered and do not constitute a financial offer.
Advertiser
Albani Riccardo
Via Sarzana 1029, La Spezia
Show Phone
Call
CONTACT

