Shed Arcola
€ 1.100 per monthCapannone / Fondo - Commerciale/Artigianale a Arcola
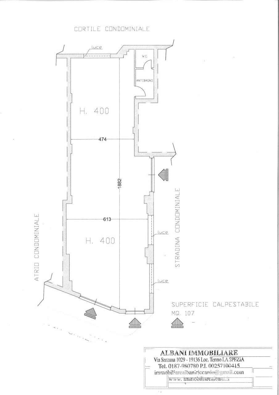
Termo di La Spezia - FC430- in affitto fondo commerciale/artigianale di mq.107 in posizione strategica ad alto passaggio sia pedonale che automobilistico. Il fondo internamente è suddiviso in tre ampi locali, con antibagno e bagno. Doppia esposizione per quanto riguarda le vetrine di esposizione. Fondo dotato di cucina con canna fumaria. Area esterna cortilizia con accesso mezzi per carico e scarico merce. Di facile reperibilità il parcheggio auto.
Main data
| Reference | FC430 |
| Ad date | 02/08/2023 |
| Contract | Rent |
| Typology | Shed |
| Surface | 107 m2 |
| Locals | 2 (2 other), 1 bathroom |
| Plan | 1 totals |
| Number of parking spaces | 1 |
Costs
| Price | 1.100 € per month |
Energy efficiency
| Energy rating | G |
Floor plans
Address and map
Arcola
Ad without map,
try asking the advertiser for the position
try asking the advertiser for the position
Advertiser
Albani Riccardo
Via Sarzana 1029, La Spezia
Show Phone
Call
CONTACT

