Terraced Villa Luni
€ 260.000Semindipendente - Villa a schiera a Luni
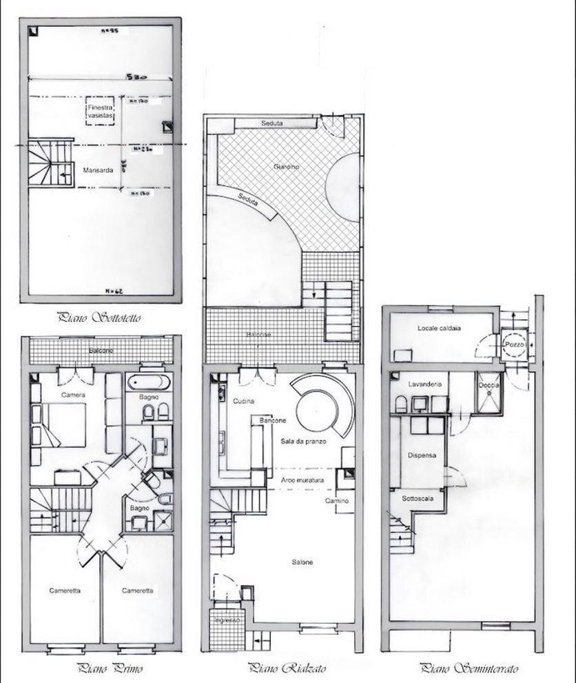
Luni in zona servita a pochi chilometri dal mare villetta a schiera su quattro livelli collegati internamente da comoda scala. La villetta e' cosi' composta: Ingresso da piano terra in soggiorno con camino e cucina a vista con zona pranzo e uscita su terrazzo e piccolo giardino. Al piano superiore tre camere da letto di cui una matrimoniale e due camerette,due bagni di cui uno con vasca e finestra e l'altro con doccia,balcone.Ampia mansarda finestrata open space piastrellata. Al piano semi interrato collegato sia internamente che esternamente ampia taverna con dispensa e zona lavanderia. Riscaldamento autonomo. Per tutelare la privacy dei nostri clienti vi informiamo che l’indirizzo e’ approssimativo e le informazioni e i valori presenti nell’annuncio non costituiscono, in alcun modo, elemento contrattuale. Le informazioni dettagliate e specifiche dell’immobile verranno fornite compilando il form dell’agenzia o contattandoci telefonicamente.
Main data
| Reference | 107553 |
| Ad date | 24/10/2023 |
| Contract | Sale |
| Typology | Terraced Villa |
| Surface | 180 m2 |
| Locals | more than 5 (3 bedrooms, 3 other), 3 bathrooms |
| Plan | 4 totals |
Costs
| Price | 260.000 € |
| Price per m2 | 1.444 €/m2 |
Energy efficiency
| Energy rating | G |
Address and map
Luni
Ad without map,
try asking the advertiser for the position
try asking the advertiser for the position
Mortgage calculation
Selling price:
Advance
20,00
Mortgage
80,00
Rate: -+
Payment: 744 per month
The results are an indicative estimate based on the data entered and do not constitute a financial offer.
Advertiser

Immobiliare Sogno Casa
Via Aurelia 264, Luni
Show Phone
Show Mobile
Call
CONTACT

