Villa Via Canale, Castelnuovo Magra
€ 380.000Case - Casa indipendente a Castelnuovo Magra
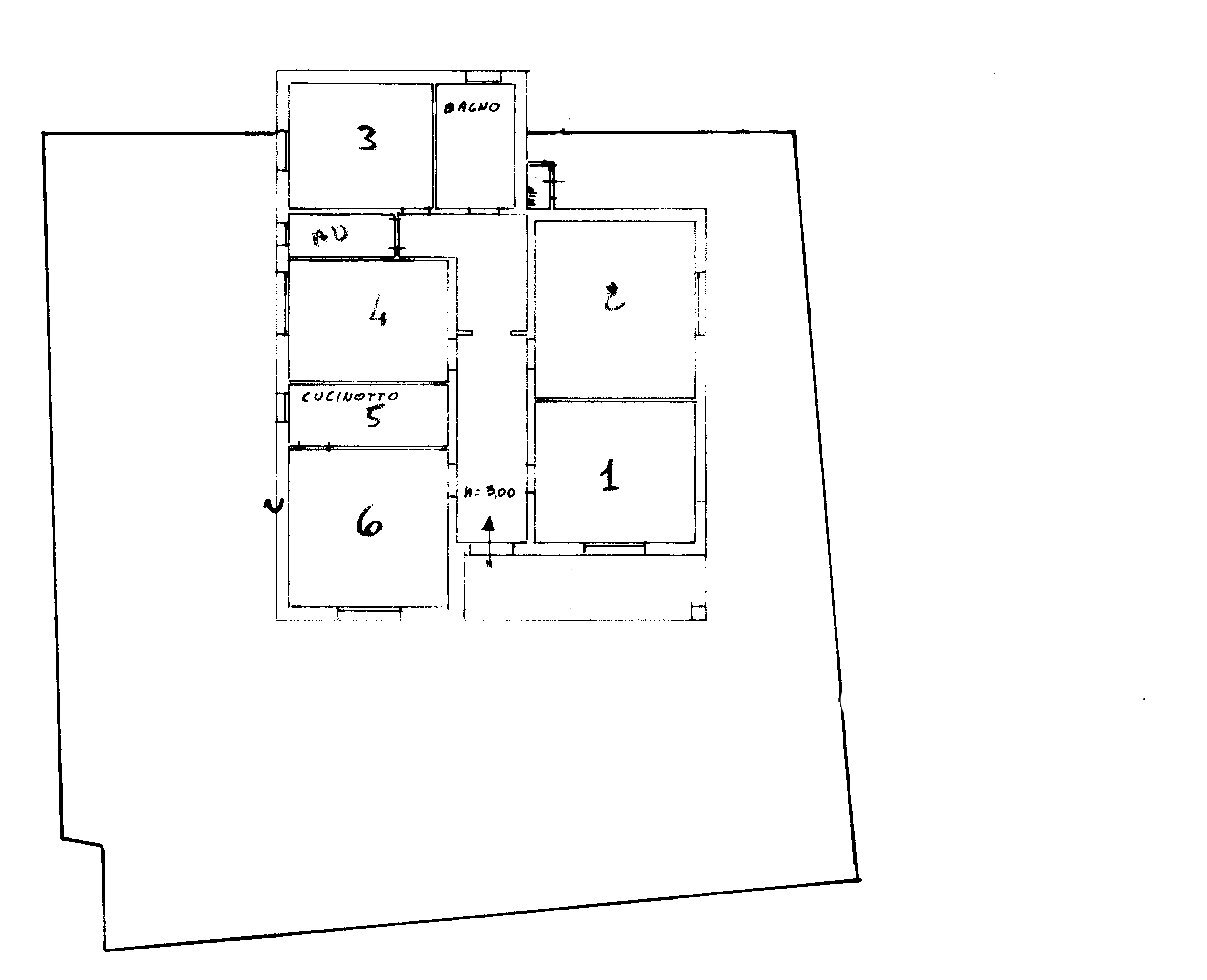
A Castelnuovo Magra, al piano e comoda a tutti i servizi, proponiamo in vendita casa indipendente disposta su un unico livello, con giardino/terreno. L’abitazione si compone di ingresso, ampio soggiorno, tinello/sala, cucinotto. La zona notte è composta da tre spaziose camere da letto e due bagni finestrati. Completa la proprietà un terreno di circa 3000 mq, ideale per chi desidera godere di ampi spazi esterni o realizzare un giardino, un orto o una zona relax. La casa si presenta in buono stato generale, con la possibilità di un riordino per adattarla a uno stile più moderno. Libera da subito, contesto tranquillo, ma ben collegato.
Si avvertono i signori clienti che gli indirizzi inseriti all'interno dell'annuncio sono puramente indicativi e non rispecchiano la realtà. Questa indicazione vuole essere un ausilio nell'individuazione della zona pur rispettando la privacy dei venditori.
Si avvertono i signori clienti che gli indirizzi inseriti all'interno dell'annuncio sono puramente indicativi e non rispecchiano la realtà. Questa indicazione vuole essere un ausilio nell'individuazione della zona pur rispettando la privacy dei venditori.
Main data
| Reference | 001031 |
| Ad date | 30/06/2022 |
| Contract | Sale |
| Typology | Villa |
| Surface | 150 m2 |
| Locals | more than 5 (3 bedrooms, 3 other), 2 bathrooms |
| Plan | 1 totals |
Costs
| Price | 380.000 € |
| Price per m2 | 2.533 €/m2 |
Energy efficiency
| Energy rating | G |
Floor plans
Address and map
Via Canale, Castelnuovo Magra
Mortgage calculation
Selling price:
Advance
20,00
Mortgage
80,00
Rate: -+
Payment: 1.087 per month
The results are an indicative estimate based on the data entered and do not constitute a financial offer.
Advertiser
Immobiliare Porta Parma
Via Porta Parma 12, Sarzana
Show Phone
Show Mobile
Call
CONTACT

