Three-room apartment Via Senatore Diogene Valotti 4, Brescia
€ 454.000Appartamento - Trilocale a Mompiano, Brescia
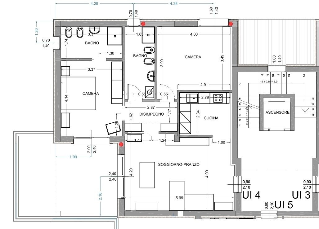
Benvenuto nella nuova “Residenza Le Terrazze”: qualità costruttiva, efficienza e stile convergono per creare un ambiente esclusivo. Scegli tra trilocali perfetti per giovani coppie e quadrilocali ideali per famiglie, appartamenti con portici, logge o giardini privati. Completa l’offerta un prestigioso attico con terrazza panoramica, immerso in una zona servita da scuole, parchi e trasporti. Proponiamo unità abitativa situata al primo piano servita da ascensore. L’ingresso conduce direttamente nella spaziosa zona living con area pranzo, caratterizzata da un’apertura sulla terrazza che dona luminosità e continuità agli spazi. La cucina a vista integra perfettamente l’ambiente giorno. Il disimpegno notte conduce alla camera matrimoniale dotata di bagno privato finestrato, a una seconda camera da letto e ad un secondo bagno, anch’esso finestrato. Al piano interrato sono presenti cantina ed autorimessa, che completano la proposta immobiliare.
Main data
| Reference | 06-4primo |
| Ad date | 28/10/2024 |
| Contract | Sale |
| Typology | Apartment |
| Surface | 123 m2 |
| Locals | 3 (2 bedrooms, 1 other), 2 bathrooms |
| Plan | 4 totals |
| Number of terraces | 1 |
Costs
| Price | 454.000 € |
| Price per m2 | 3.691 €/m2 |
Energy efficiency
| Year built | 2025 |
| Energy rating | A+ |
| Energy Performance Index (IPE) | 16.85 kWh/m2 year |
Floor plans
Address and map
Via Senatore Diogene Valotti 4, Brescia
Mortgage calculation
Selling price:
Advance
20,00
Mortgage
80,00
Rate: -+
Payment: 1.298 per month
The results are an indicative estimate based on the data entered and do not constitute a financial offer.
Advertiser
Call
CONTACT


