Small Villa Viale Alcide de Gasperi 87, San Felice Circeo
€ 530.000Villino - unico livello a San Felice Circeo
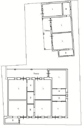
NOVITA' SUL MERCATO! Proprietà composta da 2 unità immobiliari situate in zona centralissima e di prestigio del Circeo. Questa proprietà offre diverse opportunità di personalizzazione: 1) realizzazione di una villa esclusiva ed indipendente con dependance privata, 2) realizzazione di tre monolocali con spazio esterno, 3) conservazione dell'attuale suddivisione per avviare la propria attività ricettiva mirata al costante e redditizio turismo della zona. Nello stato attuale la proprietà è adibita a B&B ed è divisa in 6 camere matrimoniali ognuna con bagno completo, nell'unità principale, mentre nell'unità più piccola ulteriori 2 camere e bagno e un vano ufficio. Inoltre corte esterna sia pavimentata che giaridnata con piante da frutto e possibilità di posti auto. Contattaci per visionare questa fantastica soluzione!
Main data
| Reference | V077 |
| Ad date | 07/05/2025 |
| Contract | Sale |
| Typology | Small Villa |
| Surface | 126 m2 |
| Locals | more than 5 (7 bedrooms, 2 other), 7 bathrooms |
| Plan | 1 totals |
Costs
| Price | 530.000 € |
| Price per m2 | 4.206 €/m2 |
Energy efficiency
| Energy rating | G |
Floor plans
Address and map
Viale Alcide de Gasperi 87, San Felice Circeo
Mortgage calculation
Selling price:
Advance
20,00
Mortgage
80,00
Rate: -+
Payment: 1.516 per month
The results are an indicative estimate based on the data entered and do not constitute a financial offer.
Advertiser
Immobiliare Casamare srl
Viale Tommasso Tittoni 139b, San Felice Circeo
Show Phone
Show Mobile
Call
CONTACT

