Semi-detached house Via Paterno 28, Sarzana
€ 300.000Semindipendente Terratetto - In Trifamigliare a Sarzanello, Sarzana
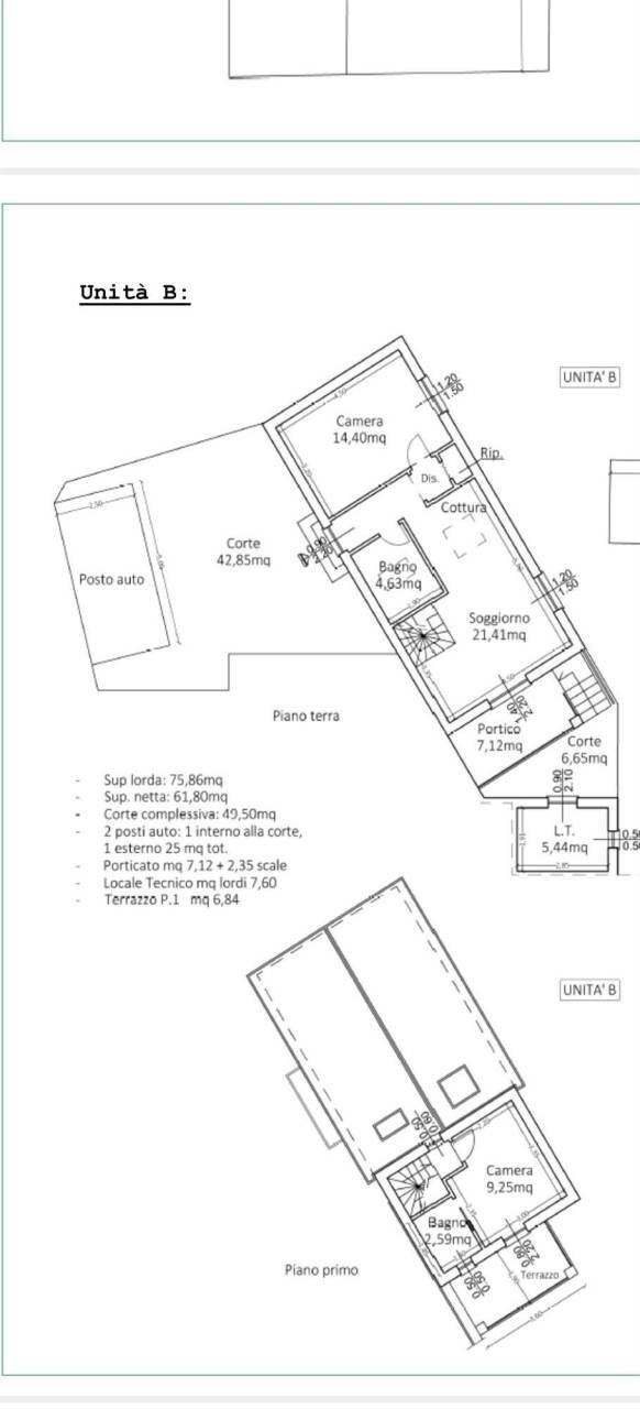
A SARZANA, A CIRCA 3 KM DAL CENTRO CITTÀ IN POSIZIONE APERTA E SOLEGGIATA, IN PICCOLO COMPLESSO TRIFAMILIARE IN CORSO DI RISTRUTTURAZIONE, VILLETTA TIPOLOGIA "B" LIBERA SU TRE LATI DISPOSTA SU DUE LIVELLI, COMPOSTA DA: INGRESSO SU SOGGIORNO CON ANGOLO COTTURA, DISIMPEGNO, CAMERA MATRIMONIALE, BAGNO, CORTE DI 50 MQ. AL PIANO PRIMO CAMERETTA CON BALCONE E BAGNO. DOPPIO POSTO AUTO. IL FABBRICATO SARÀ DOTATO DI TUTTI GLI ULTIMISSIMI ACCORGIMENTI IN TERMINI DI RISPARMIO ENERGETICO:
INSTALLAZIONE DI UN IMPIANTO DI RISCALDAMENTO A PAVIMENTO INTEGRATO CON POMPE DI CALORE PER ACQUA CALDA SANITARIA E SISTEMA DI RAFFRESCAMENTO A SPLIT LOCALIZZATI, CON FUNZIONALITÀ DIFFERENZIATA, CHE GARANTISCE L’EFFICIENZA
ENERGETICA, IL RISPARMIO ECONOMICO, LA GESTIONE FLESSIBILE DELLE STAGIONALITÀ, E L’ADERENZA ALLE NORMATIVE FUTURE SULL'EDILIZIA ABITATIVA.
QUESTO SISTEMA COMBINATO MIGLIORA L'AMBIENTE RIDUCENDO GLI SPRECHI ENERGETICI E ASSICURA IL MASSIMO COMFORT DEGLI SPAZI ABITATIVI, CREANDO UN AMBIENTE ACCOGLIENTE E SALUBRE PER TUTTA LA FAMIGLIA.
• INSTALLAZIONE A TETTO DI PANNELLI FOTOVOLTAICI PER 3,5 KW
PER ABITAZIONE.
. ISTALLAZIONE DI CAPPOTTO TERMICO.
. TETTO LEGNO A VISTA COIBENTATO MEDIANTE STIRODACT.
. INFISSI PVC TAGLIO TERMICO.
VASTA SCELTA DI CAPITOLATO NEI PAVIMENTI, E RIVESTIMENTI.
COMPLESSO IN CONSEGNA PER GIUGNO 2025.
-
CR IMMOBILIARE 347 8561740
-
Sito web: https://www.immobiliare-cr.it/it/ Facebook: https://www.facebook.com/agenziaCRimmobiliare Idealista: https://www.idealista.it/pro/cr-immobiliare-di-cecchi-roberto/vendita-case/ Immobiliare.it: https://www.immobiliare.it/agenzie-immobiliari/4528/cr-castelnuovo-magra/ - Per tutelare la privacy dei nostri clienti vi informiamo che l’indirizzo è approssimativo e le informazioni e i valori presenti nell’annuncio non costituiscono, in alcun modo, elemento contrattuale. Le informazioni dettagliate e specifiche dell’immobile verranno fornite compilando il form dell’agenzia o contattandoci telefonicamente.
INSTALLAZIONE DI UN IMPIANTO DI RISCALDAMENTO A PAVIMENTO INTEGRATO CON POMPE DI CALORE PER ACQUA CALDA SANITARIA E SISTEMA DI RAFFRESCAMENTO A SPLIT LOCALIZZATI, CON FUNZIONALITÀ DIFFERENZIATA, CHE GARANTISCE L’EFFICIENZA
ENERGETICA, IL RISPARMIO ECONOMICO, LA GESTIONE FLESSIBILE DELLE STAGIONALITÀ, E L’ADERENZA ALLE NORMATIVE FUTURE SULL'EDILIZIA ABITATIVA.
QUESTO SISTEMA COMBINATO MIGLIORA L'AMBIENTE RIDUCENDO GLI SPRECHI ENERGETICI E ASSICURA IL MASSIMO COMFORT DEGLI SPAZI ABITATIVI, CREANDO UN AMBIENTE ACCOGLIENTE E SALUBRE PER TUTTA LA FAMIGLIA.
• INSTALLAZIONE A TETTO DI PANNELLI FOTOVOLTAICI PER 3,5 KW
PER ABITAZIONE.
. ISTALLAZIONE DI CAPPOTTO TERMICO.
. TETTO LEGNO A VISTA COIBENTATO MEDIANTE STIRODACT.
. INFISSI PVC TAGLIO TERMICO.
VASTA SCELTA DI CAPITOLATO NEI PAVIMENTI, E RIVESTIMENTI.
COMPLESSO IN CONSEGNA PER GIUGNO 2025.
-
CR IMMOBILIARE 347 8561740
-
Sito web: https://www.immobiliare-cr.it/it/ Facebook: https://www.facebook.com/agenziaCRimmobiliare Idealista: https://www.idealista.it/pro/cr-immobiliare-di-cecchi-roberto/vendita-case/ Immobiliare.it: https://www.immobiliare.it/agenzie-immobiliari/4528/cr-castelnuovo-magra/ - Per tutelare la privacy dei nostri clienti vi informiamo che l’indirizzo è approssimativo e le informazioni e i valori presenti nell’annuncio non costituiscono, in alcun modo, elemento contrattuale. Le informazioni dettagliate e specifiche dell’immobile verranno fornite compilando il form dell’agenzia o contattandoci telefonicamente.
Main data
| Reference | 3409 |
| Ad date | 26/11/2024 |
| Contract | Sale |
| Typology | Semi-detached house |
| Surface | 75 m2 |
| Locals | 4 (2 bedrooms, 2 other), 2 bathrooms |
| Plan | 2 totals |
| Number of balconies | 1 |
| Number of parking spaces | 1 |
Costs
| Price | 300.000 € |
| Price per m2 | 4.000 €/m2 |
Energy efficiency
| Energy rating | A |
| Energy Performance Index (IPE) | 10 kWh/m2 year |
Floor plans
Address and map
Via Paterno 28, Sarzana
Mortgage calculation
Selling price:
Advance
20,00
Mortgage
80,00
Rate: -+
Payment: 858 per month
The results are an indicative estimate based on the data entered and do not constitute a financial offer.
Advertiser
Call
CONTACT


