

Villa Contrada San Michele 6A, Cossignano
€ 245.000Indipendente - Villa a Cossignano
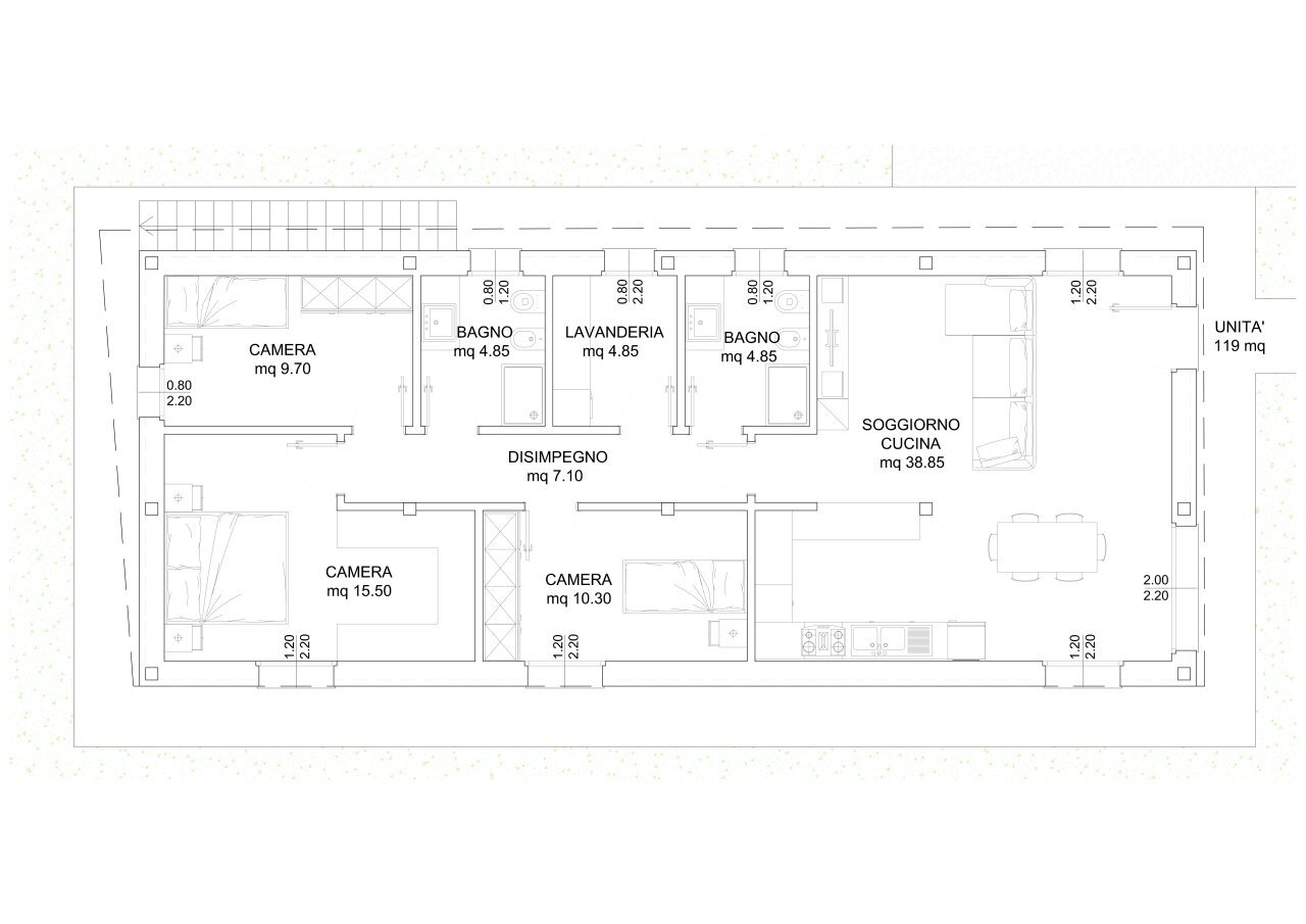
Cossignano - villa di circa 120 mq con soggiorno-cucina, 3 camere, 2 bagni e ampio giardino. Le costruzioni saranno realizzate unicamente in bioedilizia, tenendo conto delle caratteristiche del territorio, utilizzando il legno per la struttura portante e canapa per la tamponatura esterna. La canapa ha contemporaneamente funzione di tamponamento, isolante termico, isolante acustico e regolazione dell'umidità interna, garantendo salute e comfort delle persone che ci abiteranno. Gli impianti utilizzano solo fonti di energia rinnovabile (fotovoltaico e solare termico). La villetta può essere progettata e realizzata in base alle specifiche esigenze del cliente, variando i metri abitabili e gli spazi accessori, studiando la funzionalità degli ambienti a seconda del personale modo di vivere la casa.
Main data
| Reference | 2247 |
| Ad date | 03/02/2023 |
| Contract | Sale |
| Typology | Villa |
| Surface | 140 m2 |
| Locals | more than 5 (6 other) |
Costs
| Price | 245.000 € |
| Price per m2 | 1.750 €/m2 |
Energy efficiency
| Energy rating | Property exempt from energy certification |
Address and map
Contrada San Michele 6A, Cossignano
Mortgage calculation
Selling price:
Advance
20,00
Mortgage
80,00
Rate: -+
Payment: 701 per month
The results are an indicative estimate based on the data entered and do not constitute a financial offer.
Advertiser
Call
CONTACT
