Independent house Contrada San Donato 73, Monteprandone
€ 340.000Indipendente - Villetta a Centobuchi, Monteprandone
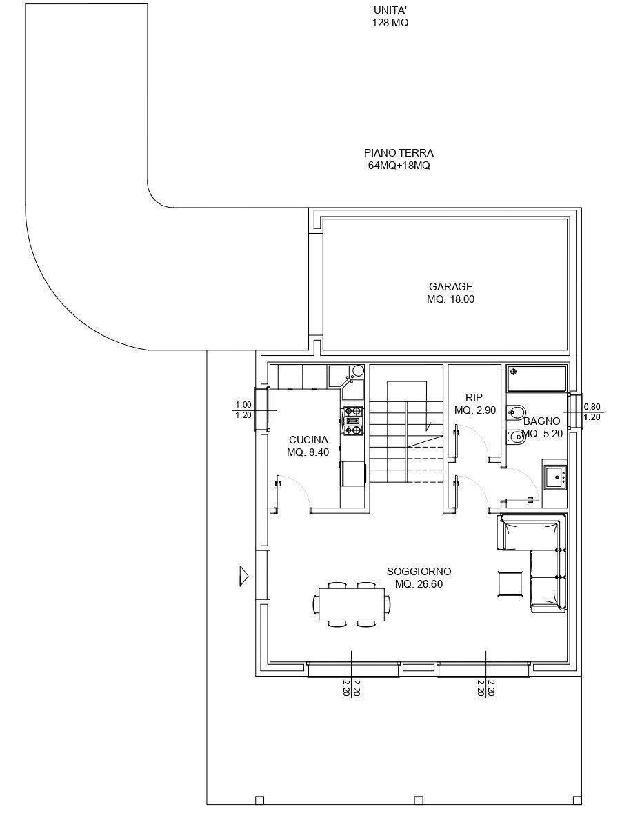
MONTEPRANDONE (AP) - Proponiamo in vendita in Contrada San Donato a CENTOBUCHI, villino singolo in bioedilizia di nuova costruzione, delle dimensioni di 128 mq oltre a porticato esterno, giardino e posto auto. L'abitazione, dallo stile pulito, versatile ed elegante, si sviluppa su due livelli: al piano terra troviamo ingresso su arioso living, in continuità con l'esterno mediante un ampio portico, cucina separata (che, tuttavia, su richiesta del cliente, può essere incorporata al soggiorno e resa a vista), bagno di servizio e ripostiglio; al piano superiore due camere che affacciano su un delizioso balcone, studiolo, secondo bagno e ripostiglio/cabina armadio. Incluso nel prezzo garage di 18 mq collocato nella zona posteriore della casa (lato strada). La costruzione sarà interamente in bioedilizia, ovvero presenterà struttura portante in legno e coibentazione in canapa e calce e risulterà energeticamente autosufficiente grazie all'installazione dell'impianto fotovoltaico (non è previsto l'allaccio del gas!). La richiesta complessiva per il villino CHIAVI IN MANO, compreso il terreno edificabile, è di € 310.000. Questo villino è la soluzione ideale per una famiglia che ricerca un'abitazione indipendente e di altissima qualità costruttiva ma situata in un contesto molto servito, a pochi minuti da Porto d'Ascoli. Il villino andrà a inserirsi all'interno di un eco-villaggio che sorgerà in località San Donato e che sarà interamente composto da abitazioni ed edifici costruiti secondo i più moderni canoni della bioedilizia.
Main data
| Reference | 2344 |
| Ad date | 13/04/2024 |
| Contract | Sale |
| Typology | Independent house |
| Surface | 180 m2 |
| Locals | more than 5 (3 bedrooms, 3 other), 2 bathrooms |
| Plan | 1 totals |
| Number of terraces | 1 |
| Number of parking spaces | 1 |
Costs
| Price | 340.000 € |
| Price per m2 | 1.889 €/m2 |
Energy efficiency
| Energy rating | A+ |
| Energy Performance Index (IPE) | - |
Floor plans
Address and map
Contrada San Donato 73, Monteprandone
Mortgage calculation
Selling price:
Advance
20,00
Mortgage
80,00
Rate: -+
Payment: 972 per month
The results are an indicative estimate based on the data entered and do not constitute a financial offer.
Advertiser
Call
CONTACT


