Three-room apartment San Benedetto del Tronto
€ 250.000Appartamento a San Benedetto del Tronto
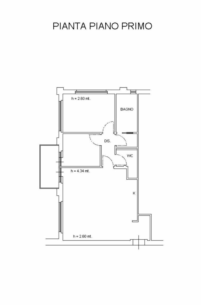
SAN BENEDETTO DEL TRONTO - in zona servita nei pressi della stazione di Porto D'Ascoli, a circa 600 metri dal mare, appartamento completamente ristrutturato nel 2019 di circa 73 mq, sito al primo e ultimo piano senza ascensore di piccolo condominio. Ha tetto in legno con altezza massima di oltre 4 metri e minima di m. 2,60. E' composto da ingresso su soggiorno ampio e luminoso con angolo cottura e terrazzino, due camere da letto e due bagni di cui uno finestrato con doccia idromassaggio. Dispone di parcheggio condominiale senza posti riservati. L'immobile si presenta in ottime condizioni, ha aria condizionata, zanzariere, tenda parasole, riscaldamento autonomo, portone blindato. Il prezzo è incluso di arredo. Riferimento agenzia 6784 DiLeoImmobiliare
Main data
| Reference | 6784 |
| Ad date | 01/10/2024 |
| Contract | Sale |
| Typology | Apartment |
| Surface | 76 m2 |
| Locals | 3 (2 bedrooms, 1 other), 2 bathrooms |
| Plan | 1 totals |
| Number of balconies | 1 |
| Furniture | Complete |
Costs
| Price | 250.000 € |
| Price per m2 | 3.289 €/m2 |
Energy efficiency
| Year built | 2005 |
| Energy rating | F |
Floor plans
Address and map
San Benedetto del Tronto
Ad without map,
try asking the advertiser for the position
try asking the advertiser for the position
Mortgage calculation
Selling price:
Advance
20,00
Mortgage
80,00
Rate: -+
Payment: 715 per month
The results are an indicative estimate based on the data entered and do not constitute a financial offer.
Advertiser

DiLeoImmobiliare
via Pasubio n. 10 piano 2°, San Benedetto del Tronto
Show Phone
Show Mobile
Call
CONTACT

