Commercial Premises Piazza di Montenero 15, Livorno
€ 170.000Fondo - C/1 a Montenero, Livorno
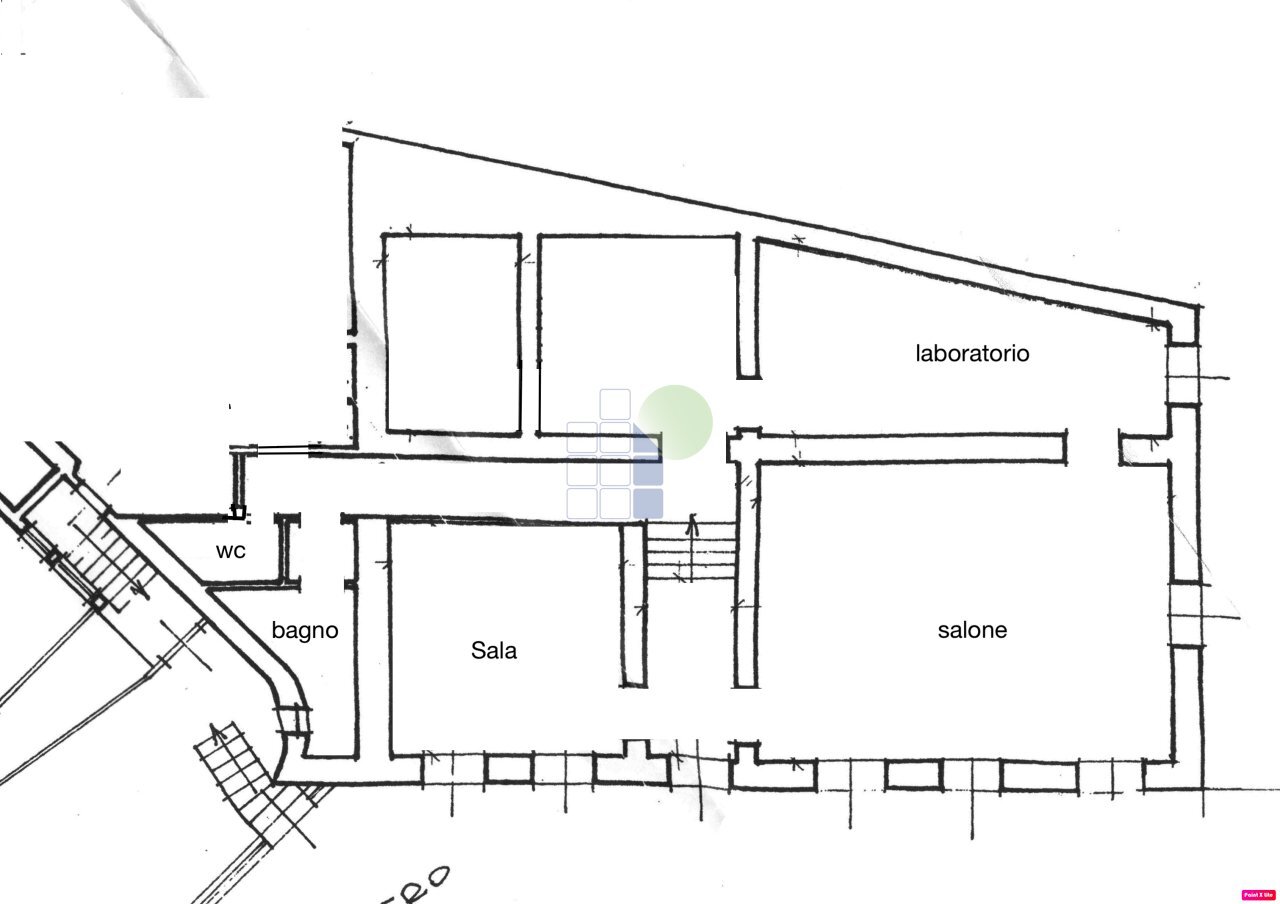
FONDO COMMERCIALE MONTENERO ALTO (PIAZZA DEL SANTUARIO) ad Euro 170.000. In posizione panoramica e di sicuro interesse, proponiamo la vendita di fondo commerciale con struttura di costruzione Liberty, ex bar bistrot, sala biliardo. I locali sono composti da un doppio ingresso che disimpegna una grande stanza principale di circa 48 mq., oltre grande magazzino sul retro; a sinistra dell'ingresso troviamo un'altra grande stanza che veniva utilizzata per la degustazione delle bevande, un altro ampio magazzino e i due servizi. L'ottimo passaggio pedonale legato all'attività turistica delle visite alla collina di Montenero ed al Santuario rendono la struttura di sicuro interesse per la riapertura dell' attività di somministrazione bevande e caffè o la degustazione di aperitivi e cocktail. Occasione, sicuramente da vedere. Riferimento Annuncio n. 3326
Main data
| Reference | 3326 |
| Ad date | 04/06/2024 |
| Contract | Sale |
| Typology | Commercial Premises |
| Surface | 130 m2 |
| Locals | 4 (4 other), 2 bathrooms |
| Plan | 1 totals |
Costs
| Price | 170.000 € |
| Price per m2 | 1.308 €/m2 |
Energy efficiency
| Year built | 1950 |
| Energy rating | Property exempt from energy certification |
Floor plans
Address and map
Piazza di Montenero 15, Livorno
Mortgage calculation
Selling price:
Advance
20,00
Mortgage
80,00
Rate: -+
Payment: 486 per month
The results are an indicative estimate based on the data entered and do not constitute a financial offer.
Advertiser

INTERMEDIA IMMOBILIARE
Via Niccolò Machiavelli, 47, Livorno
Show Phone
Show Mobile
Call
CONTACT

