Office Scali Cerere 3, Livorno
€ 1.650 per monthUfficio - operativo a San Marco, Livorno
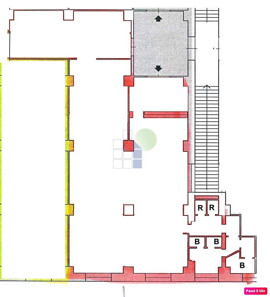
GRANDE UFFICIO IN AFFITTO ZONA PORTUALE ad Euro 1.650 mese + Iva. Nei pressi della zona Portuale e vicino ai principali servizi della Città, proponiamo la locazione di grande ufficio di circa 270 mq., composto da ingresso/reception con attesa, tre grandi stanze ad uso ufficio direzionale, grande open space ad uso operativo, due servizi uomo/donna e archivio, sala riunioni. I locali vengono consegnati in perfette condizioni con possibilità di rivisitazione e ridistribuzione degli spazi interni, climatizzazione ed impianti certificati. VERA OPPORTUNITÁ DA VEDERE. Riferimento annuncio n. 3363
Main data
| Reference | 3363 |
| Ad date | 28/08/2024 |
| Contract | Rent |
| Typology | Office |
| Surface | 270 m2 |
| Locals | 4 (4 other), 1 bathroom |
| Plan | 1 totals |
Costs
| Price | 1.650 € per month |
| Condominium fees | €20,00/month |
Energy efficiency
| Year built | 1950 |
| Energy rating | G |
Floor plans
Address and map
Scali Cerere 3, Livorno
Advertiser

INTERMEDIA IMMOBILIARE
Via Niccolò Machiavelli, 47, Livorno
Show Phone
Show Mobile
Call
CONTACT

