Office Via Francesco Briganti 127, Perugia
€ 148.000Ufficio direzionale a Perugia
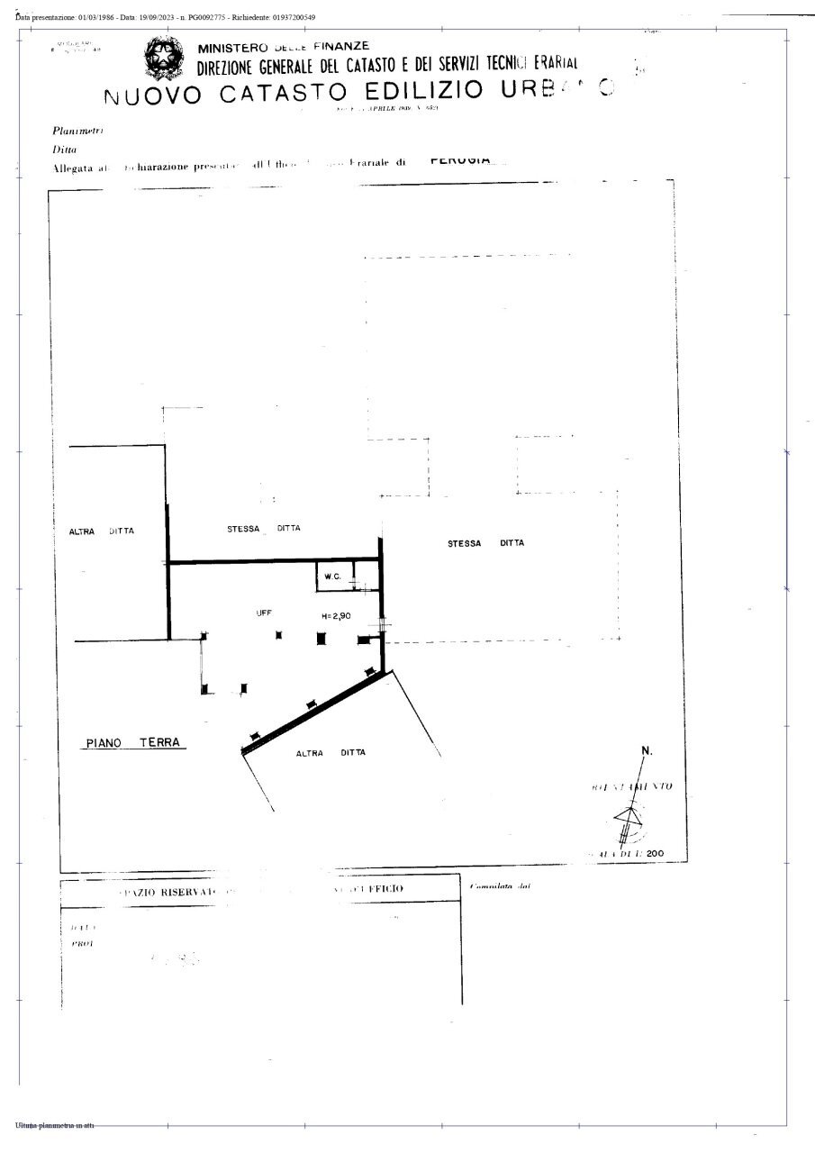
VIA BRIGANTI: ufficio di 150 metri quadrati situato in una posizione commerciale eccellente, perfetto per la tua attività! L'immobile, con ingresso autonomo e affaccio al primo piano, offre un ambiente molto luminoso grazie alle grandi vetrate continue che garantiscono una splendida luce naturale. Il comodo ingresso al piano terra rende l'accesso facile e immediato per te e i tuoi clienti. Inoltre, l'orientamento sud-ovest assicura un'ottima esposizione solare durante tutto il giorno. La proprietà è subito disponibile, pronta per essere personalizzata secondo le tue esigenze professionali. Con un'ampia disponibilità di parcheggi nelle vicinanze, i tuoi dipendenti e clienti non avranno mai problemi a trovare posto. Il certificato di prestazione energetica è attualmente in fase di valutazione, garantendo così un acquisto sicuro e trasparente. Non perdere questa opportunità unica! Il prezzo di richiesta è di Euro 148.000,00. ( Rif. E82S ) .
Main data
| Reference | E82S |
| Ad date | 14/05/2024 |
| Contract | Sale |
| Typology | Office |
| Surface | 150 m2 |
| Locals | 1 (1 other), 1 bathroom |
| Plan | 1 totals |
Costs
| Price | 148.000 € |
| Price per m2 | 987 €/m2 |
| Condominium fees | €45,00/month |
Energy efficiency
| Energy rating | In the calculation phase |
Floor plans
Address and map
Via Francesco Briganti 127, Perugia
Mortgage calculation
Selling price:
Advance
20,00
Mortgage
80,00
Rate: -+
Payment: 423 per month
The results are an indicative estimate based on the data entered and do not constitute a financial offer.
Advertiser
Call
CONTACT


