

Commercial Premises Via Calderia 7, Lucca
€ 350.000fondo commerciale - da ristrutturare a Centro storico, Lucca
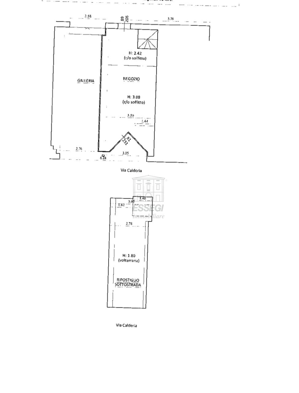
UF03005 - LUCCA CENTRO STORICO – NOSTRA ESCLUSIVA - VENDESI FONDO COMMERCIALE IN POSIZIONE PRIVILEGIATA A DUE PASSI DA PIAZZA SAN MICHELE Situato nel cuore pulsante del centro storico di Lucca, questo ampio fondo commerciale di 60 mq si distingue per la sua posizione strategica e le TRE vetrine di grande visibilità. Perfetto per chi cerca di avviare un’attività in un contesto centrale e di passaggio oppure per investimento. Dettagli: Superficie: 60 mq, Tre grandi vetrine due su strada ed una su una piazza. Classe Energetica G - Richiesta € 350.000
Main data
| Reference | UF03005 |
| Ad date | 03/07/2025 |
| Contract | Sale |
| Typology | Commercial Premises |
| Surface | 60 m2 |
| Locals | 2 (2 other), 1 bathroom |
| Plan | 2 totals |
Costs
| Price | 350.000 € |
| Price per m2 | 5.833 €/m2 |
Energy efficiency
| Energy rating | G |
Floor plans
Address and map
Via Calderia 7, Lucca
Mortgage calculation
Selling price:
Advance
20,00
Mortgage
80,00
Rate: -+
Payment: 1.001 per month
The results are an indicative estimate based on the data entered and do not constitute a financial offer.
Advertiser
Call
CONTACT
