Apartment Modica
€ 90.000APPARTAMENTO - IN BIFAMILIARE a MODICA ALTA, Modica
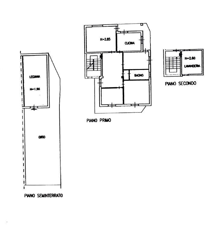
Vendesi a Modica Alta appartamento in bifamiliare con giardino. L'appartamento è ubicato al primo piano, ha una metratura di circa 100 mq ed è composto da ampio salotto, cucina abitabile, soggiorno, tre camere da letto e bagno. Comodo vano lavanderia al secondo piano con proprietà di metà terrazzo indiviso. Completano la proprietà un giardino di circa 70 mq ed una cantina di circa 40 mq. Buone condizioni.
Main data
| Reference | 11551 |
| Ad date | 04/02/2025 |
| Contract | Sale |
| Typology | Apartment |
| Surface | 100 m2 |
| Locals | 5 (3 bedrooms, 2 other), 1 bathroom |
| Plan | 1 totals |
| Number of terraces | 1 |
| Number of balconies | 1 |
Costs
| Price | 90.000 € |
| Price per m2 | 900 €/m2 |
Energy efficiency
| Year built | 1982 |
| Energy rating | In the calculation phase |
Floor plans
Address and map
Modica
Ad without map,
try asking the advertiser for the position
try asking the advertiser for the position
Mortgage calculation
Selling price:
Advance
20,00
Mortgage
80,00
Rate: -+
Payment: 257 per month
The results are an indicative estimate based on the data entered and do not constitute a financial offer.
Advertiser

GFA REAL ESTATE S.R.L.S.
PIAZZA LIBERTA', 9, Modica
Show Phone
Show Mobile
Call
CONTACT

