Commercial Premises Strada Provinciale 231, Modugno
€ 250.000Capannone - Industriale a Zona Industriale, Modugno
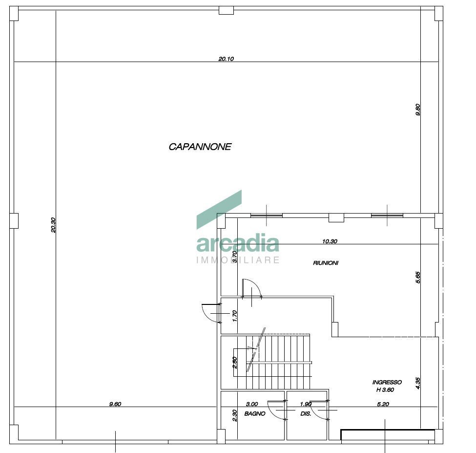
IN VENDITA – Capannone a Modugno (BA) nel Centro Economico Barese Arcadia Immobiliare propone la vendita di un capannone industriale, in ottime condizioni d’uso, all’interno del Centro Economico Barese di Modugno e con accesso diretto dalla Strada Provinciale SP 231, arteria fondamentale per la logistica e per i collegamenti, della zona industriale dell’area metropolitana di Bari. La struttura si sviluppa su una superficie coperta complessiva di circa 540 mq, di cui 310 mq per il capannone e 230 mq per gli uffici che sono organizzati su due livelli e comprendono i servizi igienici e gli spogliatoi. Il capannone dotato di certificato di agibilità, si presta a molteplici utilizzi, garantendo funzionalità, rappresentanza e comfort operativo. Il capannone situato in un complesso – ordinato, tranquillo e sorvegliato – è dotato di ampie aree condominiali che garantiscono il parcheggio dei mezzi, il carico/scarico e lo stoccaggio temporaneo delle merci. Questo immobile rappresenta lo spazio ideale per aziende alla ricerca di una soluzione pronta all’uso, ben collegata e in una posizione strategica a pochi minuti da Bari. Per valutare la proposta commerciale personalizzata sulle vostre esigenze, è possibile chiamare il numero di Arcadia Immobiliare +39.080.504.15.23 oppure prenotare una visita direttamente dal sito arcadiaimmobiliare.it
Main data
| Reference | 11944/2025 |
| Ad date | 17/04/2025 |
| Contract | Sale |
| Typology | Commercial Premises |
| Surface | 540 m2 |
| Locals | 1 (1 other), 2 bathrooms |
| Plan | 1 totals |
Costs
| Price | 250.000 € |
| Price per m2 | 463 €/m2 |
| Condominium fees | €60,00/month |
Energy efficiency
| Year built | 1998 |
| Energy rating | G |
Floor plans
Address and map
Strada Provinciale 231, Modugno
Mortgage calculation
Selling price:
Advance
20,00
Mortgage
80,00
Rate: -+
Payment: 715 per month
The results are an indicative estimate based on the data entered and do not constitute a financial offer.
Advertiser

Arcadia Immobiliare
Via Jose Maria Escrivà 28, Bari
Show Phone
Show Mobile
Call
CONTACT

