Office Via Papa Giovanni Paolo I' 10/E, Bari
€ 300.000Ufficio - oltre pentalocale a Poggiofranco, Bari
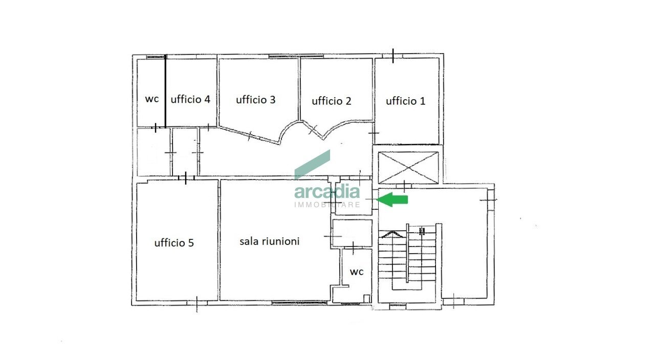
Vendita Ufficio – Bari Poggiofranco A pochi passi dalla sede del Tribunale Penale In una delle zone più prestigiose e strategiche del quartiere Poggiofranco, nelle immediate vicinanze della sede del Tribunale Penale di Bari, proponiamo in vendita un elegante ufficio di circa 130 m² ideale per studi professionali, società di consulenza o realtà aziendali che necessitano di una sede rappresentativa e funzionale. L’immobile è suddiviso in cinque comode stanze operative e una spaziosa sala riunioni, oltre a due bagni. Ogni ambiente è luminoso e arieggiato, grazie alle ampie finestre che assicurano luce naturale per tutto l’arco della giornata. L’ufficio è dotato di: * Rete LAN cablata in tutti gli ambienti * Impianto di climatizzazione caldo/freddo autonomo * Pavimentazione in parquet che conferisce eleganza e comfort * Finestre in ogni stanza con luce ed aria diretta La posizione è particolarmente vantaggiosa: l’area è servita da numerosi parcheggi, bar, servizi e collegamenti principali, rendendo l’immobile perfetto per attività che necessitano di facile accesso per clienti e collaboratori. * Bari – Poggiofranco * Superficie: circa 130 m² Soluzione ideale per studi associati, società di servizi, professionisti e investitori in cerca di un immobile di rappresentanza in una delle zone più richieste della città. Per valutare la proposta commerciale personalizzata sulle vostre esigenze, è possibile chiamare Immobiliare Arcadia al numero 080.504.15.23 oppure prenotare direttamente una visita dal sito arcadiaimmobiliare.it
Main data
| Reference | 11988/2025 |
| Ad date | 24/09/2025 |
| Contract | Sale |
| Typology | Office |
| Surface | 130 m2 |
| Locals | more than 5 (6 bedrooms), 2 bathrooms |
| Plan | 1 totals |
Costs
| Price | 300.000 € |
| Price per m2 | 2.308 €/m2 |
| Condominium fees | €60,00/month |
Energy efficiency
| Year built | 1974 |
| Energy rating | D |
Floor plans
Address and map
Via Papa Giovanni Paolo I' 10/E, Bari
Mortgage calculation
Selling price:
Advance
20,00
Mortgage
80,00
Rate: -+
Payment: 858 per month
The results are an indicative estimate based on the data entered and do not constitute a financial offer.
Advertiser

Arcadia Immobiliare
Via Jose Maria Escrivà 28, Bari
Show Phone
Show Mobile
Call
CONTACT

