Semi-detached house Via Della Grotta, Ferrara
€ 470.000
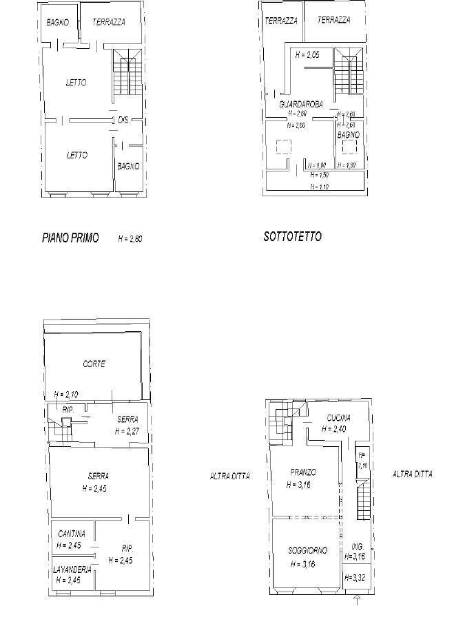
Zona Via Piangipane in contesto tranquillo e residenziale, affascinante casa indipendente su 2 lati da cielo a terra (TIPICO CASSERO FERRARARESE) in vendita in Via Della Grotta Questa proprietà offre un ingresso indipendente che conduce a una spaziosa sala con camino per riscaldare l'atmosfera e zona pranzo/soggiorno, perfetta per accogliere amici e familiari. La cucina è ben attrezzata e comoda. La zona notte comprende due camere da letto con affaccio su terrazzino abitabile e due bagni finestrati con doccia e vasca. Il piano mansardato offre due vani aggiuntivi (ideali per camera da letto e studio), bagno finestrato con doccia e terrazzo panoramico, ideale per rilassarsi e godersi il sole. Il piano seminterrato ospita una zona taverna accogliente con una vetrata luminosa che affaccia direttamente sullo SCOPERTO PRIVATO piastrellato con copertura a scomparsa. La proprietà include anche un ripostiglio, una lavanderia e ottime rifiniture. Dispone di un sistema di aria condizionata e di riscaldamento autonomo, zanzariere oltre a cancelletti alle finestre per garantire sicurezza e tranquillità. Situata in una zona centrale, comoda al centro e ai mezzi pubblici, questa proprietà offre facilità di parcheggio per i residenti. Non lasciarti scappare questa fantastica opportunità! Contattaci subito per scoprire di più! Agenzia Immobiliare Bozzolani Via Garibaldi, 79a - 44121 Ferrara 0532 206803 - 328 8828932 www.bozzolani.it
Main data
| Reference | 211bb |
| Ad date | 14/10/2025 |
| Contract | Sale |
| Typology | Semi-detached house |
| Surface | 191 m2 |
| Locals | more than 5 (3 bedrooms, 3 other), 3 bathrooms, kitchen habitable |
| Plan | On several levels, 2 totals |
| Construction type | Signorile |
| Occupied | Free |
| Garage | Absent |
| Furniture | Absent |
Costs
| Price | 470.000 € |
| Price per m2 | 2.461 €/m2 |
Energy efficiency
| Status | Good |
| Heating | Autonomous |
| Energy rating | E |
| Energy Performance Index (IPE) | - |
Floor plans
Video
Address and map
Via Della Grotta, Ferrara
Ad without map,
try asking the advertiser for the position
try asking the advertiser for the position
Mortgage calculation
Selling price:
Advance
20,00
Mortgage
80,00
Rate: -+
Payment: 1.344 per month
The results are an indicative estimate based on the data entered and do not constitute a financial offer.
Advertiser

Agenzia Immobiliare Bozzolani srl
Via Garibaldi, 79/a, Ferrara
Show Phone
Show Mobile
Call
CONTACT

