
To see more images,
try asking the advertiser
try asking the advertiser
Apartment Lanciano
€ 300.000
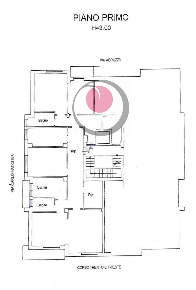
Lanciano, nella meravigliosa cornice di Corso Trento e Trieste, con uno sguardo privilegiato sulla principale via della città, proponiamo in vendita grande appartamento posto al primo piano di palazzina servita da ascensore. Ingresso su ampia zona giorno completa di cucina abitabile con tinello e luminoso salone con splendido affaccio sul Corso. Accedendo alla zona notte si incontrano invece le tre ampie camere servite da balconi e doppi servizi, oltre a due confortevoli locali studio. Nell'abitazione, in buone condizioni generali, sono presenti finiture di ottima qualità come una pregevole pavimentazione in marmo. Grazie ad un doppio ingresso è possibile destinare parte della superficie ad uso professionale mantenendo la dimesione abitativa. Una soluzione prestigiosa e accattivante in un'invidiabile posizione centrale che le conferisce un carattere unico ed irripetibile.
Main data
| Reference | 475/21 |
| Ad date | 24/07/2025 |
| Contract | Sale |
| Typology | Apartment |
| Surface | 180 m2 |
| Locals | more than 5 (3 bedrooms, 4 other), 2 bathrooms, kitchen habitable |
| Construction type | Signorile |
| Occupied | Free |
| Garage | Absent |
| Furniture | Absent |
Costs
| Price | 300.000 € |
| Price per m2 | 1.667 €/m2 |
Energy efficiency
| Status | Excellent |
| Heating | Autonomous |
| Heating Power Type | Other |
| Energy rating | Property exempt from energy certification |
Address and map
Lanciano
Ad without map,
try asking the advertiser for the position
try asking the advertiser for the position
Mortgage calculation
Selling price:
Advance
20,00
Mortgage
80,00
Rate: -+
Payment: 858 per month
The results are an indicative estimate based on the data entered and do not constitute a financial offer.
Advertiser
Call
CONTACT
